Hoppa till innehåll
Kållered

Ullas lyckas väg 42

Charmigt gavelradhus i populära Livered

  • Typ: Kedjehus, Kedjehus
  • Rum: 2, varav 1 sovrum
  • Boarea: 51 m2
  • Tomtarea: 149 m2
  • Byggnadsår: 1976
  • Driftkostnad: 33 562 kr/år
  • Upplåtelseform: Äganderätt

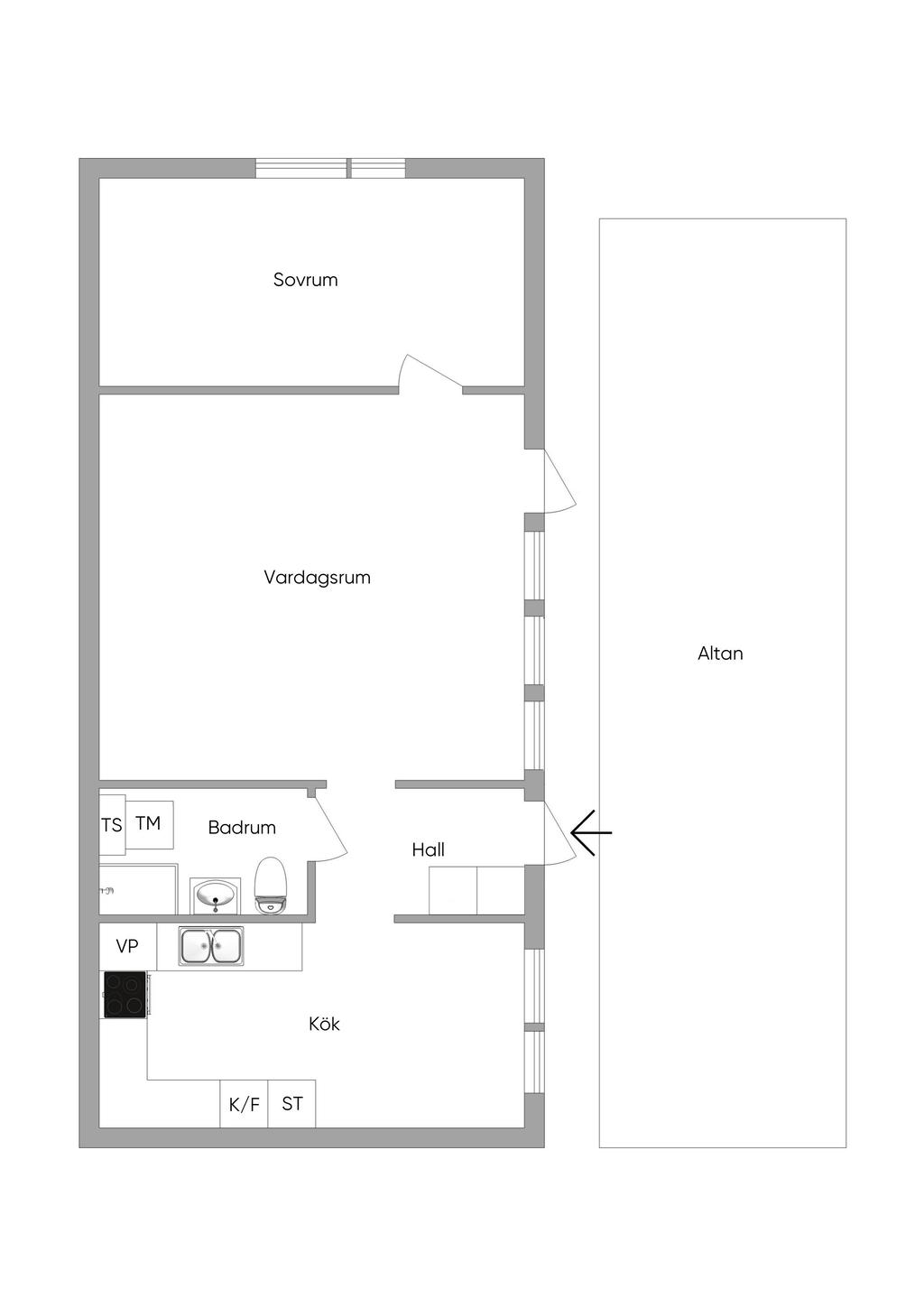
Välkommen till detta trivsamma och friköpta enplansradhus i centrala Kållered - Livered!

Bostaden omfattar 51 kvadratmeter som är smart disponerade över två rum och kök. En trivsam och bekväm bostad – perfekt för det unga paret som söker sitt första boende, den lilla familjen eller för seniorparet som vill ha ett smidigt och lättskött hem.

Här möts du av en planlösning som skapar en luftig och välkomnande känsla.

Vid entré i hallen finns gott om plats för ytterkläder och skor. Till vänster ligger köket med given plats för matgrupp vid fönstret och utsikt över den vidsträckta altanen på framsidan.
Rakt fram från hallen ligger badrummet, utrustat med dusch, tvättmaskin, handfat och WC. Här inne finns även varmvattenberedare.

Till höger i bostaden öppnar vardagsrummet upp sig med generösa ytor och stora fönster som släpper in rikligt med ljus. Här finns plats för både soffgrupp och matbord. Härifrån når du även framsidan på tomten och den mycket väl tilltagna altanen - en naturlig plats för avkoppling, och närheten till lekplatsen gör bostaden extra attraktiv för barnfamiljer.

Sovrummet är rymligt och rymmer både säng och arbetsplats vid behov. Här finns gott om plats för garderobsförvaring.

För övrig förvaring finns ett praktiskt förråd på tomten.

Området är lugnt och omtyckt, med en blandning av olika bostadstyper och närhet till både natur, service och kommunikationer. Kållered köpstad som nu expanderar ligger på bekvämt avstånd.
Välkommen att lämna din intresseanmälan!

Om Bostaden

Sammanfattning

Typ: Kedjehus, Kedjehus
Rum: 2, varav 1 sovrum
Boarea: 51 m2
Tomtarea: 149 m2
Pris (Utgångspris): 2 495 000 kr
Byggnadsår: 1976
Driftkostnad: 33 562 kr/år
Upplåtelseform: Äganderätt

Kommentar till boarean

Boareauppgift enligt: Lantmäteriet

Uppvärmning

Oljefyllda el-element samt luft-luftvärmepump

Byggnadssätt

Vatten: Kommunalt vatten året om
Avlopp: Kommunalt avlopp
Grund: Platta på mark
Stomme: Trä
Fasad: Liggande träpanel
Fönster: 2-glas kopplade fönster
Takbeklädnad: Betongpannor
Ventilation: Självdrag

Renoveringar

2012:
Nytt golv i sovrum.

2013:
Nya radiatorer och en luft/ luftvärmepump.

2014:
Omläggning tak.

2015:
Stensättning.

2019:
Byggt altan.

ca 2020:
Diskmaskin
Kyl

ca. 2023:
Spis
Fläkt

2024:
Ny varmvattenberedare.
Nya golv i kök, hall och vardagsrum.

Tomt/balkong/uteplats

Mycket väl tilltagen altan

Övriga byggnader

Förråd på tomten

Parkering

Egen garageplats med möjlighet till laddning (installationskostnad ca. 13 000 kr)

Tv/Internetanslutning

Fiber

Allmänt

Län: Västra Götaland
Kommun: Mölndal
Fastighetsbeteckning: MÖLNDAL LIVERED 1:75

Planbestämmelser

Norra liveredsområdet, Stadsplan (Beslutsdatum: 1975-11-11, Senast ändrad: 2024-03-04)

Övriga rättigheter och belastningar

Gemensamhetsanläggning: MÖLNDAL LIVERED GA:1 - KVARTERSGÅRDAR,PARKERINGSOMRÅDEN MM,SERVISLEDNINGAR FÖR KALL-O SPILLVATTEN,DAGVATTEN-OCH DRÄNERINGSLEDNINGAR MM,KÖR-OCH GÅNGYTOR MM,CENTRALANTENNANLÄGGNING OCH YTTERBELYSNING
MÖLNDAL LIVERED GA:2 - GARAGELÄNGOR OCH ELUTRUSTNINGEN INOM GARAGELÄNGORNA

Ekonomi

Pris (Utgångspris)

2 495 000 kr

Driftkostnader

33 562 kr/år
Årlig elförbrukning: 8000 kWh/år
Antal i hushållet: 4

Fördelas enligt följande

Försäkring: 7 000 kr
Samfällighet: 7 400 kr
Renhållning samt vatten och avlopp: 6 562 kr
Uppvärmning samt hushållsel: 12 600 kr
Beskrivning: 3 st. gemensamhetslokaler inom finns att låna / hyra inom samfälligheten

Samfällighetsavgiften betalas halvårsvis.
Via samfälligheten ingår:
Egen garageplats
Markbundna TV-kanaler (fiber)
Skötsel av gemensamma vägar, gångbanor, lekplatser och diverse ytor.
Drift av 3 st. samlingslokaler
Gästparkeringsplatser

Utöver ovanstående eventuella driftkostnader tillkommer fastighetsavgift med belopp om 10 425 kr.

Observera att driftskostnaderna som anges ovan baseras på säljarens faktiska kostnader det senaste året om inget annat särskilt anges.
Vilka driftskostnader köparen kommer att ha beror på hur bostaden kommer att användas, vilka abonnemang som kommer att tecknas och övriga omständigheter i det enskilda fallet.

Taxering

Byggnad: 764 000 kr
Mark: 1 484 000 kr
Totalt: 2 248 000 kr
Taxeringsår: 2024
Taxeringsvärdet är: Fastställt
Värdeår: 1976
Standardpoäng: 23
Typkod: 220, Småhusenhet, bebyggd

Pantbrev

Det finns 13 pantbrev uttaget om sammanlagt 1 256 000 kr.

Energideklaration

Status: Energideklaration är utförd
Energiprestanda: 158 kWh/kvm/år
Energiklass: EE
Specifik energianvändning: 81 kWh/kvm/år
Energideklaration utförd: 2026-03-26
Besiktningsman: Hans Modin, Anticimex AB

Försäkring

Svensk Fastighetsförmedling samarbetar med If för att underlätta ditt bostadsköp. När du köper bostad eller fritidshus genom Svensk Fastighetsförmedling är den automatiskt försäkrad. Vi kallar det Flytta in-försäkring. Den är kostnadsfri och gäller under de första 30 dagarna. Fortsätter du sedan att försäkra hemmet eller fritidshuset hos If får du 10% rabatt och flera andra unika förmåner. Fråga din mäklare för att ta del av erbjudandet.
Trygg affär - Varudeklarerad Villa

Alla bilder

+ 12 Visa alla 18 bilder
 

Planritning

Karta och område

Ullas lyckas väg 42, Kållered

Kalkyl

Vad kostar nya boendet?

Fler värden

Här nedanför kan du ändra ränta, amortering och driftkostnader och se hur de påverkar kalkylen.

Återställ alla värden
Visa fler

Ränta

Amortering

Driftkostnad per månad

Driftkostnad/månad

Observera att driftskostnaderna som anges ovan baseras på säljarens faktiska kostnader det senaste året om inget annat särskilt anges.

Vilka driftskostnader köparen kommer att ha beror på hur bostaden kommer att användas, vilka abonnemang som kommer att tecknas och övriga omständigheter i det enskilda fallet.

Boendekostnad per månad

Ränta
+  kr
Driftkostnad
+  kr
Fastighetsskatt/-avgift
+ 869 kr
Skattereduktion
 kr
Summa
ca  kr
Amortering
+  kr
Inkl amortering
ca  kr

Ansök om lånelöfte

Hos vårt systerbolag Ordna Bolån kan du enkelt ansöka om lånelöfte eller bolån. En ansökan, svar från flera banker.

Visningsanmälan

Fyll i formuläret så kontaktar vi dig inom kort.

Välj mellan nedan alternativ
Söndag 17 maj
Anmälan krävs

Ullas lyckas väg 42, 428 33 Kållered
Anmälan krävs
Jag vill veta mer om bostaden

Kontaktuppgifter
Vänligen ange förnamn
Vänligen ange efternamn
Vänligen ange telefonnummer
Vänligen ange e-post
500 tecken kvar
Har du lånelöfte?*
Vill du ha hjälp med lånelöfte?
Vill du få nyheter och erbjudanden?

Oj, något gick fel! Försök igen. 

Ett ögonblick!
Tack, dina uppgifter är sparade!
Du fyllde inte i någon e-postadress. Ange den nedan för att inte missa någon information.
 
 
 
Ta del av vår integritetspolicy
 
 
 

Liknande bostäder till salu

Mölndal
Ullas lyckas väg 42
Dela bostad: Dela på Facebook Dela med epost Dela med sms Kopiera länk Länken kopierad

Planritning