Hoppa till innehåll
Edsvalla

Torggatan 4

Välkommen till Torggatan 4 – ett rymligt enplanshus med stor potential!

  • Typ: Villa, 1-plan
  • Rum: 5, varav 2-3 sovrum
  • Boarea: 170 m2
  • Biarea: 60 m2
  • Tomtarea: 1 050 m2
  • Byggnadsår: 1981
  • Driftkostnad: 39 800 kr/år
  • Upplåtelseform: Äganderätt

Här erbjuds ett gediget och välplanerat enplanshus om hela 170 kvm boarea samt 60 kvm biarea, perfekt för dig som söker gott om utrymme och vill sätta din egen prägel på ett hem. Fastigheten har ett stort, praktiskt garage med elektrisk port – idealiskt både för bil och förvaring.

Bergvärme samt vedpanna som bidrar till låga driftkostnader året runt. Invändigt möts du av ett hem med nyrenoverat badrum och ett kök där flera ytor och funktioner har renoverats nyligen. Samtidigt finns en charm från äldre ytskikt i stora delar av huset – här finns möjligheten att skapa ditt alldeles egna drömhem.

Läget är dessutom barnvänligt med en lekpark precis utanför huset och närhet till både natur och kommunikationer, busshållplats ligger precis runt hörnet.

Varmt välkommen att anmäla dig till visning!

Om Bostaden

Sammanfattning

Typ: Villa, 1-plan
Rum: 5, varav 2 sovrum, möjlighet till 3 sovrum
Boarea: 170 m2
Biarea: 60 m2
Tomtarea: 1 050 m2
Utgångspris: 1 795 000 kr
Byggnadsår: 1981
Driftkostnad: 39 800 kr/år
Upplåtelseform: Äganderätt

Kommentar till boarean

Boareauppgift enligt: Lantmäteriet

Uppvärmning

Bergvärmepump + Vedpanna

Byggnadssätt

Vatten: Kommunalt vatten året om
Avlopp: Kommunalt avlopp
Grund: Platta på mark
Stomme: Trä
Fasad: Tegel
Fönster: 2+1
Takbeklädnad: Betongpannor
Ventilation: FT

Renoveringar

2017: Ny kyl/frys
2019: Ny diskmaskin
2021: Inglasad altan
2025: Nytt kakel + bänkskiva i kök, renoverat badrum (helkaklat), renoverad WC, renoverat hallen, rengjort samt behandlat taket (10 års garanti)

Parkering

Garage samt uppfart

Tv/Internetanslutning

Fiber

Allmänt

Län: Värmland
Kommun: Karlstad
Fastighetsbeteckning: KARLSTAD HÖGLUNDA 1:193

Planbestämmelser

Edsvalla samhälle., Stadsplan (Beslutsdatum: 1974-10-30, Senast ändrad: 2024-04-03)

Övriga rättigheter och belastningar

Rättigheter förmån: Officialservitut: VÄG

Ekonomi

Utgångspris

1 795 000 kr

Driftkostnader

39 800 kr/år
Årlig elförbrukning: 10000 kWh/år
Antal i hushållet: 1

Fördelas enligt följande

El: 10 000 kr
Uppvärmning: 15 000 kr
Vatten och avlopp: 6 500 kr
Försäkring: 5 400 kr
Renhållning: 2 900 kr
Beskrivning: OBS! det har endast dragits 6700 kWh el under 2024. Årlig elförbrukning är därmed uppskattad.

Utöver ovanstående eventuella driftkostnader tillkommer fastighetsavgift med belopp om 10 425 kr.

Observera att driftskostnaderna som anges ovan baseras på säljarens faktiska kostnader det senaste året om inget annat särskilt anges.
Vilka driftskostnader köparen kommer att ha beror på hur bostaden kommer att användas, vilka abonnemang som kommer att tecknas och övriga omständigheter i det enskilda fallet.

Taxering

Byggnad: 1 203 000 kr
Mark: 266 000 kr
Totalt: 1 469 000 kr
Taxeringsår: 2024
Taxeringsvärdet är: Fastställt
Värdeår: 1981
Standardpoäng: 27
Typkod: 220, Småhusenhet, bebyggd

Pantbrev

Det finns 3 pantbrev uttaget om sammanlagt 369 000 kr.

Energideklaration

Status: Energideklaration är utförd
Energiprestanda: 68 kWh/kvm/år
Energiklass: CC
Specifik energianvändning: 40 kWh/kvm/år
Energideklaration utförd: 2025-07-29

Försäkring

Svensk Fastighetsförmedling samarbetar med If för att underlätta ditt bostadsköp. När du köper bostad eller fritidshus genom Svensk Fastighetsförmedling är den automatiskt försäkrad. Vi kallar det Flytta in-försäkring. Den är kostnadsfri och gäller under de första 30 dagarna. Fortsätter du sedan att försäkra hemmet eller fritidshuset hos If får du 10% rabatt och flera andra unika förmåner. Fråga din mäklare för att ta del av erbjudandet.
Trygg affär - Varudeklarerad Villa

Alla bilder

+ 32 Visa alla 38 bilder
 

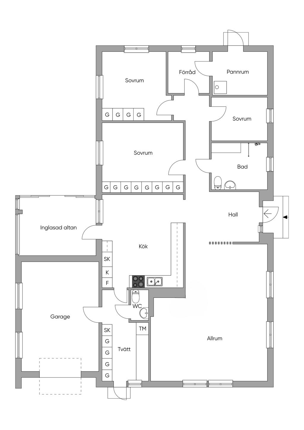
Planritning

Karta och område

Torggatan 4, Edsvalla

Visa avstånd som lista:
Avstånd avser alltid fågelvägen

Kalkyl

Vad kostar nya boendet?

Fler värden

Här nedanför kan du ändra ränta, amortering och driftkostnader och se hur de påverkar kalkylen.

Återställ alla värden
Visa fler

Ränta

Amortering

Driftkostnad per månad

Driftkostnad/månad

Observera att driftskostnaderna som anges ovan baseras på säljarens faktiska kostnader det senaste året om inget annat särskilt anges.

Vilka driftskostnader köparen kommer att ha beror på hur bostaden kommer att användas, vilka abonnemang som kommer att tecknas och övriga omständigheter i det enskilda fallet.

Boendekostnad per månad

Ränta
+  kr
Driftkostnad
+  kr
Fastighetsskatt/-avgift
+ 869 kr
Skattereduktion
 kr
Summa
ca  kr
Amortering
+  kr
Inkl amortering
ca  kr

Ansök om lånelöfte

Hos vårt systerbolag Ordna Bolån kan du enkelt ansöka om lånelöfte eller bolån. En ansökan, svar från flera banker.

Visningsanmälan

Fyll i formuläret så kontaktar vi dig inom kort.

Välj mellan nedan alternativ
Torsdag 14 maj
Anmälan krävs

Torggatan 4, 664 93 Edsvalla
Anmäl dig till ansvarig!
Jag vill veta mer om bostaden

Kontaktuppgifter
Vänligen ange förnamn
Vänligen ange efternamn
Vänligen ange telefonnummer
Vänligen ange e-post
500 tecken kvar
Har du lånelöfte?*
Vill du ha hjälp med lånelöfte?
Vill du få nyheter och erbjudanden?

Oj, något gick fel! Försök igen. 

Ett ögonblick!
Tack, dina uppgifter är sparade!
Du fyllde inte i någon e-postadress. Ange den nedan för att inte missa någon information.
 
 
 
Ta del av vår integritetspolicy
 
 
 

Liknande bostäder till salu

Karlstad
Torggatan 4
Dela bostad: Dela på Facebook Dela med epost Dela med sms Kopiera länk Länken kopierad

Planritning