Längtar du efter ett eget husliv?
Alla bilder
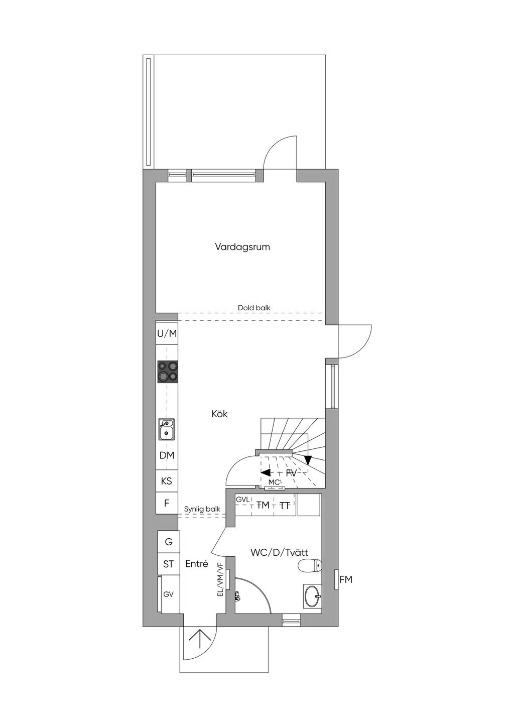
Planritning
Karta och område
Plantslingan 37, Skogås
Kalkyl
Vad kostar nya boendet?
Med hjälp av vår boendekostnadskalkyl får du snabbt en uppfattning om vad den här bostaden skulle kosta dig per månad. Du kan enkelt justera siffrorna utifrån dina personliga förutsättningar. Kontakta mäklaren om du vill ha hjälp med beräkningen.
Den här bostaden saknar pris. Du kan justera siffrorna i kalkylen och räkna på hur en månadskostnad skulle se ut.
Fler värden
Här nedanför kan du ändra ränta, amortering och driftkostnader och se hur de påverkar kalkylen.
Observera att driftskostnaderna som anges ovan baseras på säljarens faktiska kostnader det senaste året om inget annat särskilt anges.
Vilka driftskostnader köparen kommer att ha beror på hur bostaden kommer att användas, vilka abonnemang som kommer att tecknas och övriga omständigheter i det enskilda fallet.
- Summa
- ca kr
- Amortering
- + kr
Ansök om lånelöfte
Våra partners
Intresseformulär
Fyll i formuläret så kontaktar vi dig inom kort.
Du behöver inte ha bestämt dig för att flytta.
Tillsammans ser vi på helheten – vad du behöver, vilket boende som kan passa och hur vi får ihop affären så att du kan ta nästa steg.
                             
             
                                
 
                         
                         
                         
                         
                         
     
     
     
     
     
     
     
     
     
     
     
     
     
     
    