
Såld 05 aug 2025
Slutpris
3 000 000 kr
Välplanerad 1-plans villa i Stråvalla
Kontakta ansvarig mäklare
Rasmus Nilsson
Lediga tider:
fre 17/10 och mån 20/10
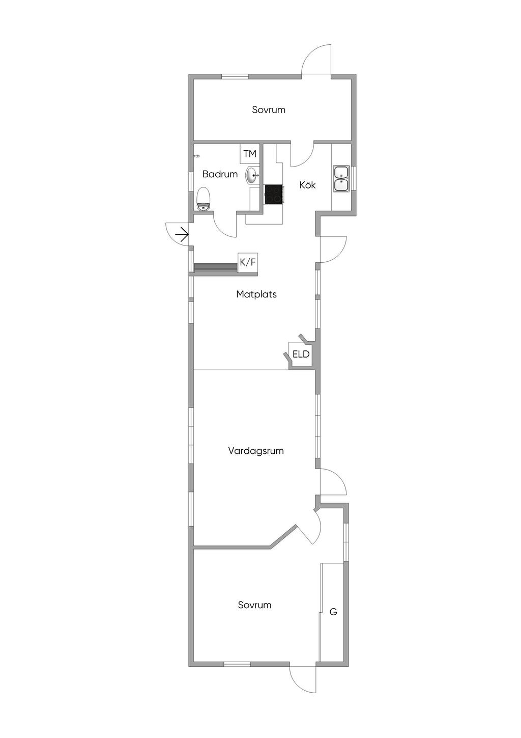
Planritning

Viss avvikelse kan förekomma. Skala och mått kan avvika från verkligheten.
FullskärmKarta och område
Svartemossevägen 24, Stråvalla
Trygg affär - Varudeklarerad Villa
Marknadens mest omfattande paket för besiktning och försäkring ger trygghet i 10 år*.
*Enligt marknadsbevakning 2025-04-02
Läs mer här