
Såld 10 sep 2025
Slutpris
2 540 000 kr
Ljus tvåa med stor inbjudande uteplats!
Kontakta ansvarig mäklare
William Nordenstam
Lediga tider:
mån 20/10 och tis 21/10
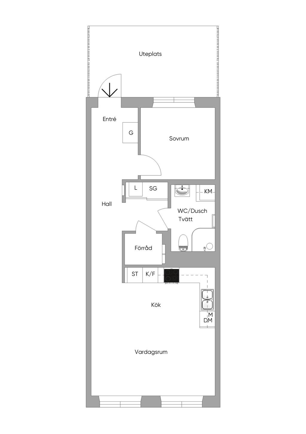
Planritning

Viss avvikelse kan förekomma. Skala och mått kan avvika från verkligheten.
Fullskärm