
Såld 23 jul 2025
Lediga tider:
fre 17/10 och mån 20/10
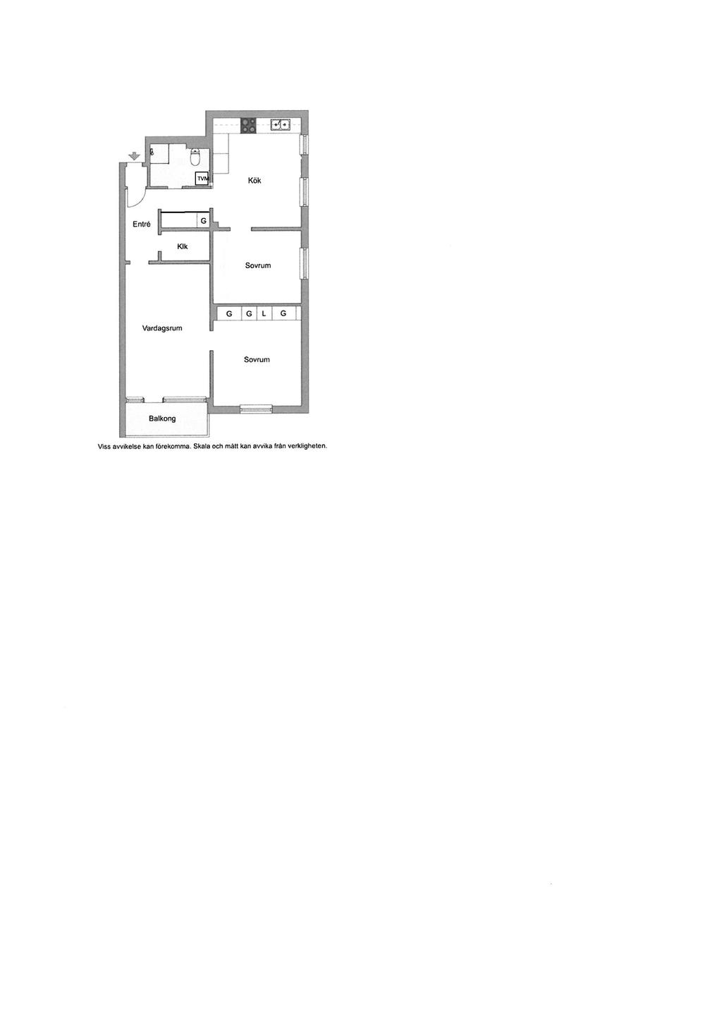
Planritning

2D skiss. Vissa avvikelser kan förekomma,
Viss avvikelse kan förekomma. Skala och mått kan avvika från verkligheten.