
Såld 28 aug 2025
Slutpris
9 400 000 kr
Radhuskänsla i Vasastan - sekelskiftespärla med terrass
Lediga tider:
fre 17/10 och mån 27/10
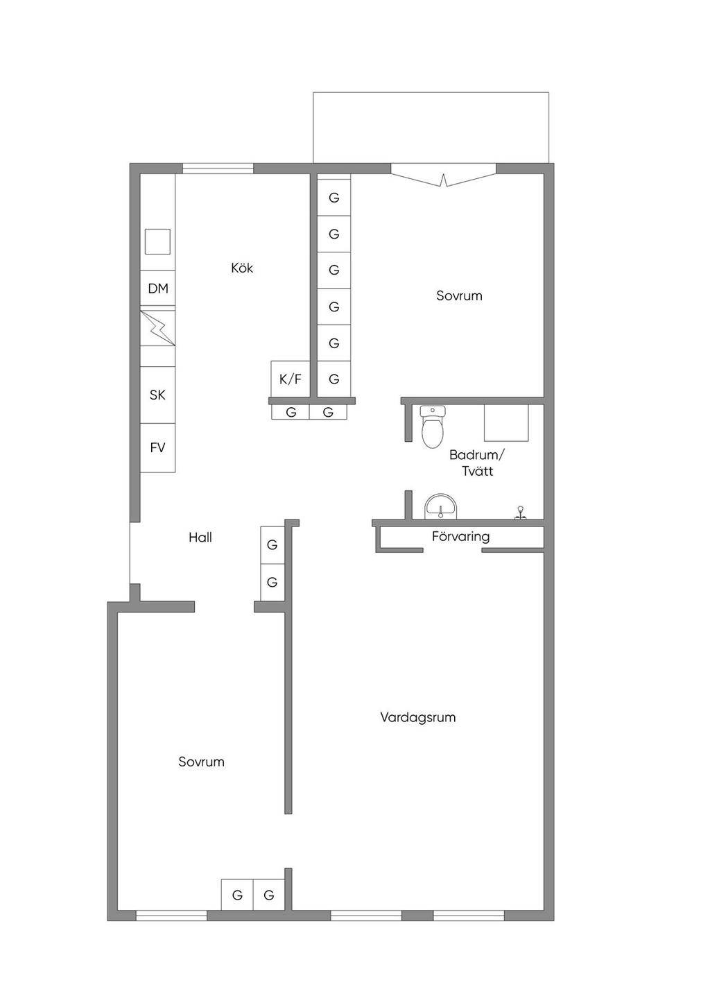
Planritning

Viss avvikelse kan förekomma. Skala och mått kan avvika från verkligheten.
Fullskärm