Hoppa till innehåll
Bostadshus
Såld 21 okt 2025
Slutpris
2 200 000 kr

Smissgatan 33, Hemse

Charmig enplans villa med garage och carport samt bra läge i Hemse. Välkomna på visning.

  • Typ: Villa, 1 plan
  • Rum: 5, varav 3 sovrum
  • Boarea: 109 m2
  • Biarea: 47 m2
  • Tomtarea: 991 m2
  • Byggnadsår: 1970
  • Driftkostnad: 49 000 kr/år
  • Upplåtelseform: Äganderätt

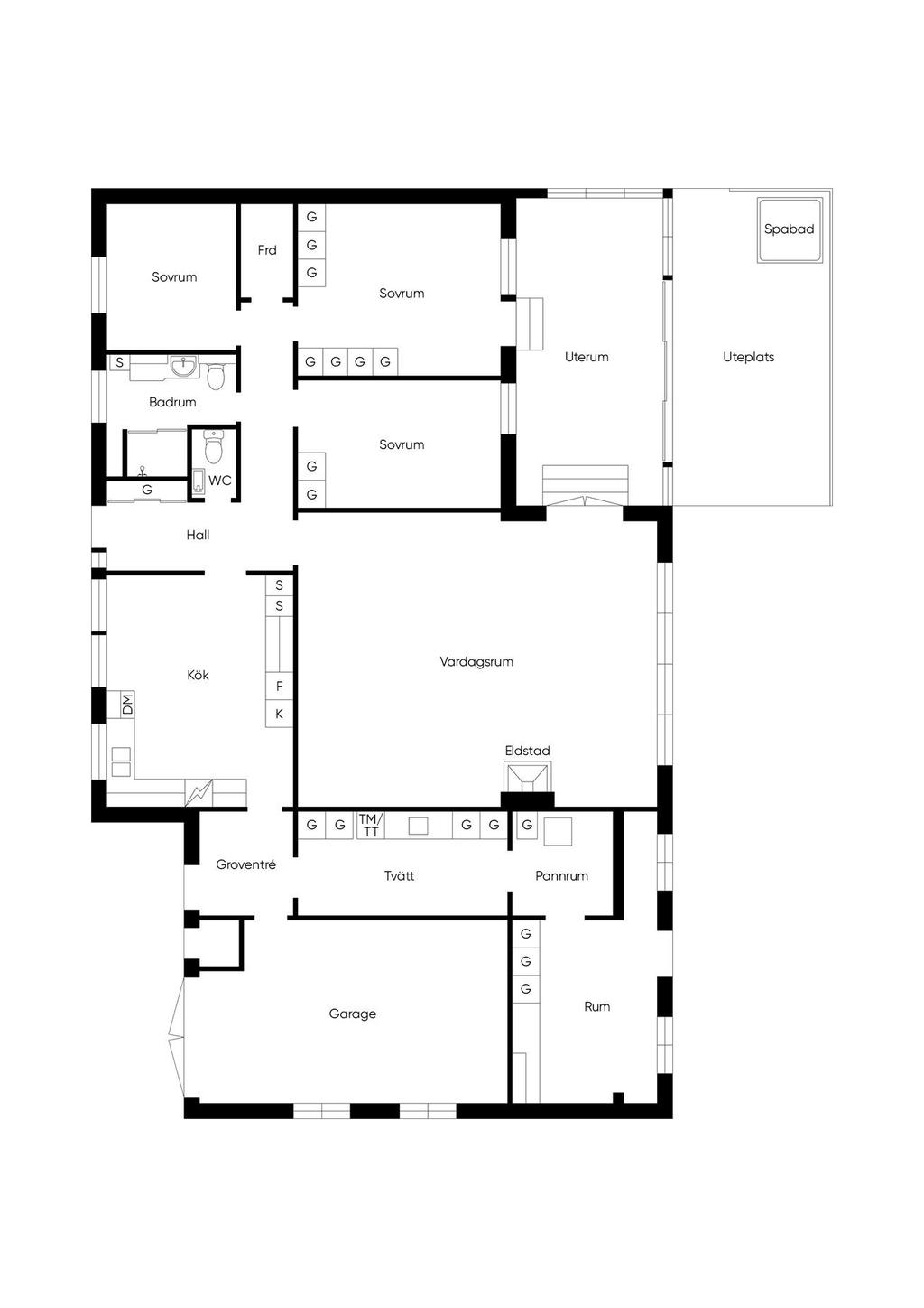
Planritning

Karta och område

Smissgatan 33, Hemse

Kundernas omdömen

2025-09-03
Raka rör, och enkel och koncist
Thomas M
2025-08-21
Mkt nöjd!! Känns väldig erfaren och gav mkt tydliga instruktioner så jag som köpare känner mig trygg
Andreas S
2025-08-15
Johan är en gotländsk mäklare med lång erfarenhet som har koll på läget. Han är effektiv och svarar snabbt på sms och mejl.
Anders L
2025-08-04
Johan bästa mäklaren vi anlitat! Otroligt seriös, noggrann, lugn och inte minst väldigt klok, när man själv som säljare börjar oroa sig… helt i onödan! Men det vi kanske uppskattade allra mest var att Johan hela tiden under sälj p...
Margareta B
2025-07-07
Kommunikativ och saklig effektiv
Elisabet S
2025-06-26
Kompetent, lyhörd och engagerad.
Björn H
2025-06-20
Så effektiv och professionell!!
Jonatan A
2025-06-18
Trovärdig, kunnig, tillmötesgående och mycket trevlig
Petra A
2025-06-17
Duktig, engagerad och professionell.
Jens D
 
Steg 1/4 - Bostadsuppgifter
Steg 2/4 - Välj tid för mötet
Steg 3/4 - Kontaktuppgifter
Steg 4/4 - Slutför bokning
Steg 3/3 - Kontaktuppgifter

Boka tid med en mäklare för värdering

1. Fyll i dina bostadsuppgifter
2. Välj tid och mäklare i kalendern
3. Mäklaren ringer innan besöket

Boka tid med en mäklare som passar dig och din bostad

Så här går det till
1. Fyll i dina bostadsuppgifter
2. Välj tid och mäklare i kalendern
3. Mäklaren ringer innan besöket
Vi ringer dig för att boka en tid
Vi hittade inga lediga tider just nu. Fyll i dina kontaktuppgifter nedan så ringer vi upp för att boka in en passande tid.
Vi ringer dig för att en boka tid
Vi hittade inga lediga tider. Men det är inga problem, vi ringer upp för att hitta en passande tid.
Fyll i dina kontaktuppgifter
Vi behöver dem för att kunna kontakta dig inför mötet.
Fyll i dina kontaktuppgifter
Vänligen fyll i dina uppgifter nedan så ringer vi upp dig för att boka en tid.
Mäklare:
Tid:

Hur kontaktar vi dig?

Oj, något gick fel. Försök gärna igen. 

En muntlig värdering är oftast gratis, men om du bor långt bort från vårt kontor kan en mindre avgift tillkomma. I så fall stämmer mäklaren av det med dig innan.

Vi tar en avgift för en skriftlig värdering för exempelvis bolån. Prata med din mäklare för att få ytterligare information om detta.

Du förbinder dig inte till någonting när du bokar en tid.

Hämtar tider...
Ett ögonblick!
Tack, dina uppgifter är sparade!
Ditt möte är bokat!
Mäklare:
Datum:
Tid:
kl.
Adress:
Lägg till gärna till epost för att inte missa något.