
Såld 12 jun 2025
Slutpris
10 250 000 kr
Mälarvy! Arkitektritad drömvilla i ett plan – Sjönära med separat 1 rok!
Kontakta ansvarig mäklare
Elisabet Jacobsen
Lediga tider:
tis 21/10 och ons 22/10
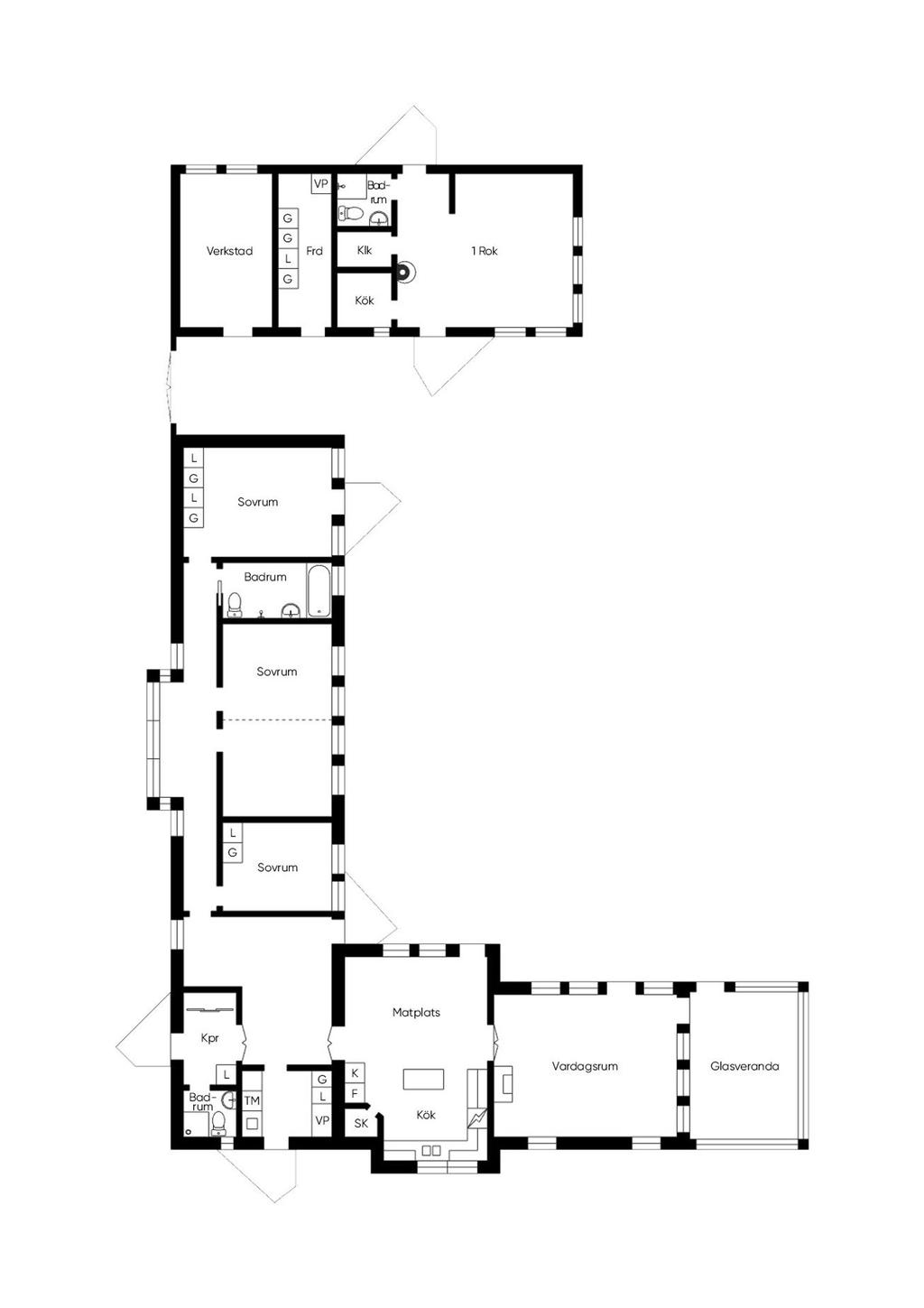
Planritning

Viss avvikelse kan förekomma. Skala och mått kan avvika från verkligheten.
FullskärmKarta och område
Tynäs 4, Strängnäs
Trygg affär - Varudeklarerad Villa
Marknadens mest omfattande paket för besiktning och försäkring ger trygghet i 10 år*.
*Enligt marknadsbevakning 2025-04-02
Läs mer här