
Såld 08 maj 2025
Lediga tider:
ons 22/10 och mån 27/10
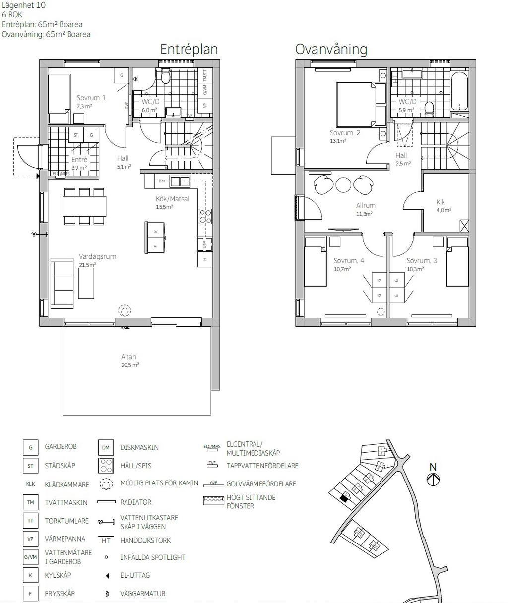
Planritning

Viss avvikelse kan förekomma. Skala och mått kan avvika från verkligheten.
Fullskärm