
Såld 14 jul 2025
Slutpris
6 570 000 kr
Unikt timmerhus omfamnad av naturen!
Kontakta ansvarig mäklare
Nora Berg
Lediga tider:
fre 17/10 och sön 19/10
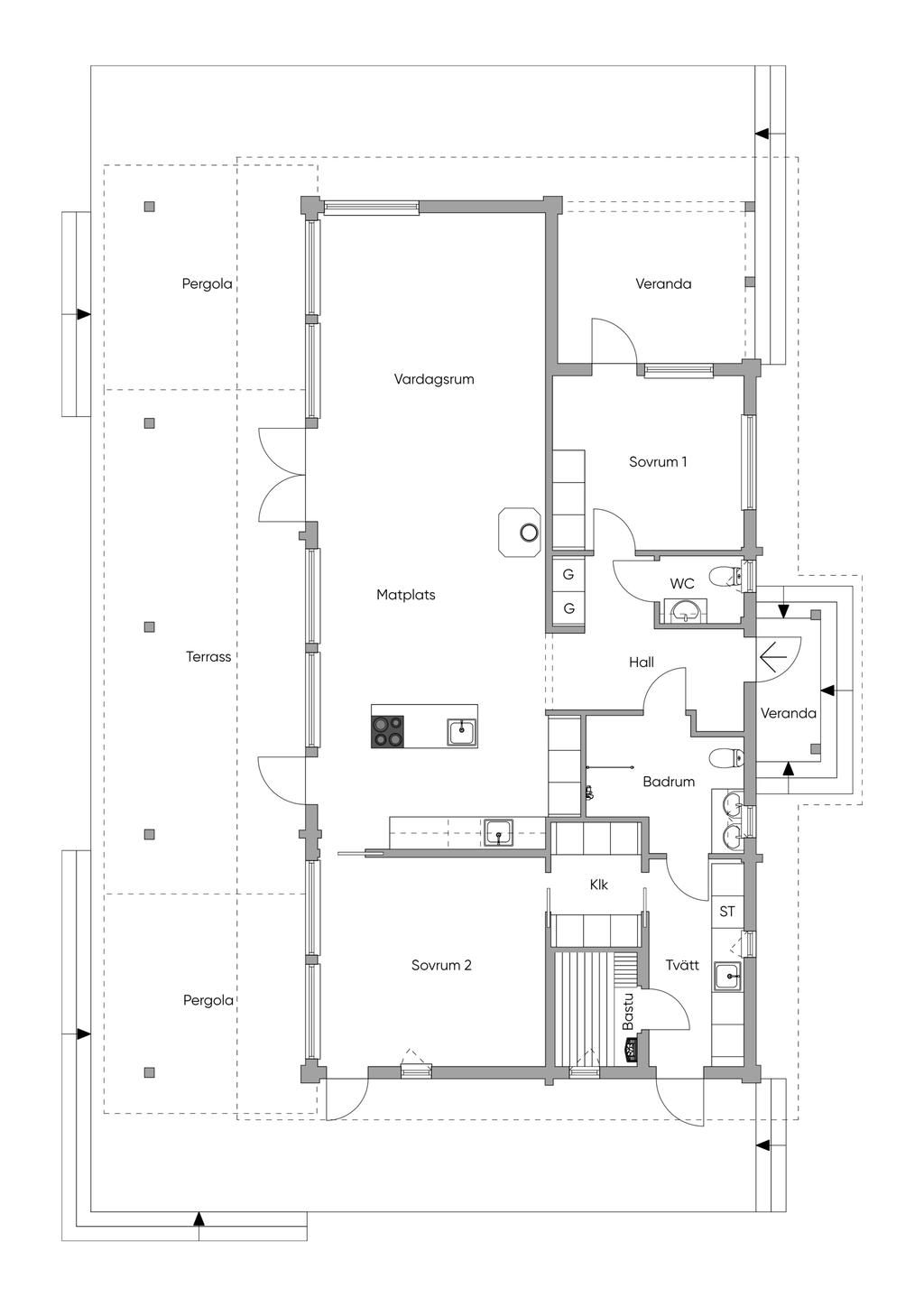
Planritning

Viss avvikelse kan förekomma. Skala och mått kan avvika från verkligheten.
FullskärmKarta och område
Dalaviksvägen 40, Tollered
Trygg affär - Varudeklarerad Villa
Marknadens mest omfattande paket för besiktning och försäkring ger trygghet i 10 år*.
*Enligt marknadsbevakning 2025-04-02
Läs mer här