
Såld 29 apr 2025
Lediga tider:
tis 21/10 och tor 23/10
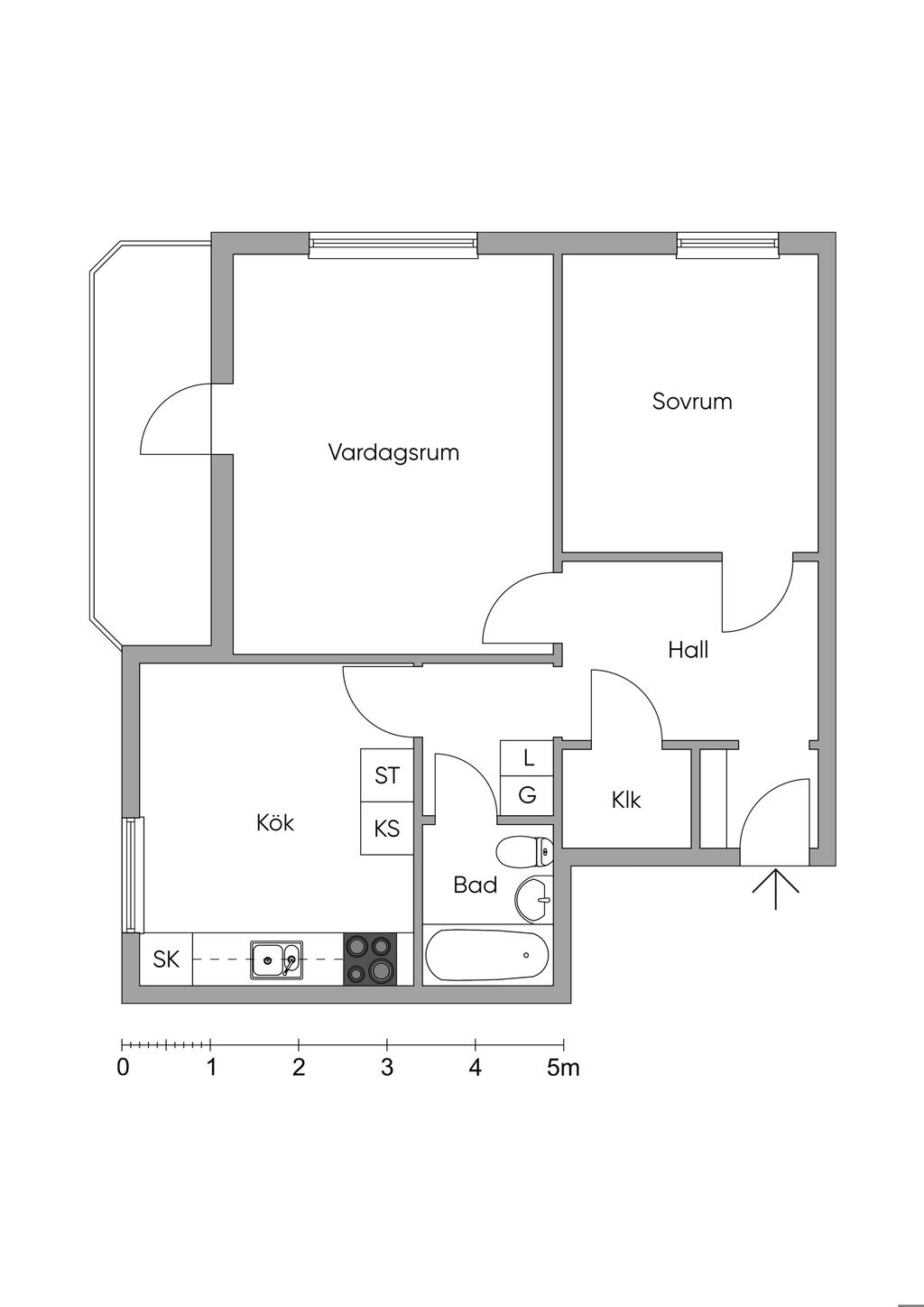
Planritning

Viss avvikelse kan förekomma. Skala och mått kan avvika från verkligheten.
Fullskärm