
Såld 27 apr 2025
Slutpris
3 500 000 kr
Mälarutsikt, hiss och inglasad balkong!
Kontakta ansvarig mäklare
Elisabet Jacobsen
Lediga tider:
tis 21/10 och ons 22/10
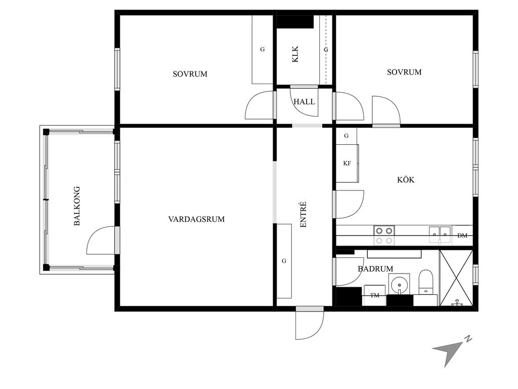
Planritning

Viss avvikelse kan förekomma. Skala och mått kan avvika från verkligheten.
Fullskärm