
Såld 12 mar 2025
Slutpris
1 630 000 kr
Renoveringschans på Tornslingan - Nära centrum och kommunikationer!
Lediga tider:
fre 17/10 och mån 20/10
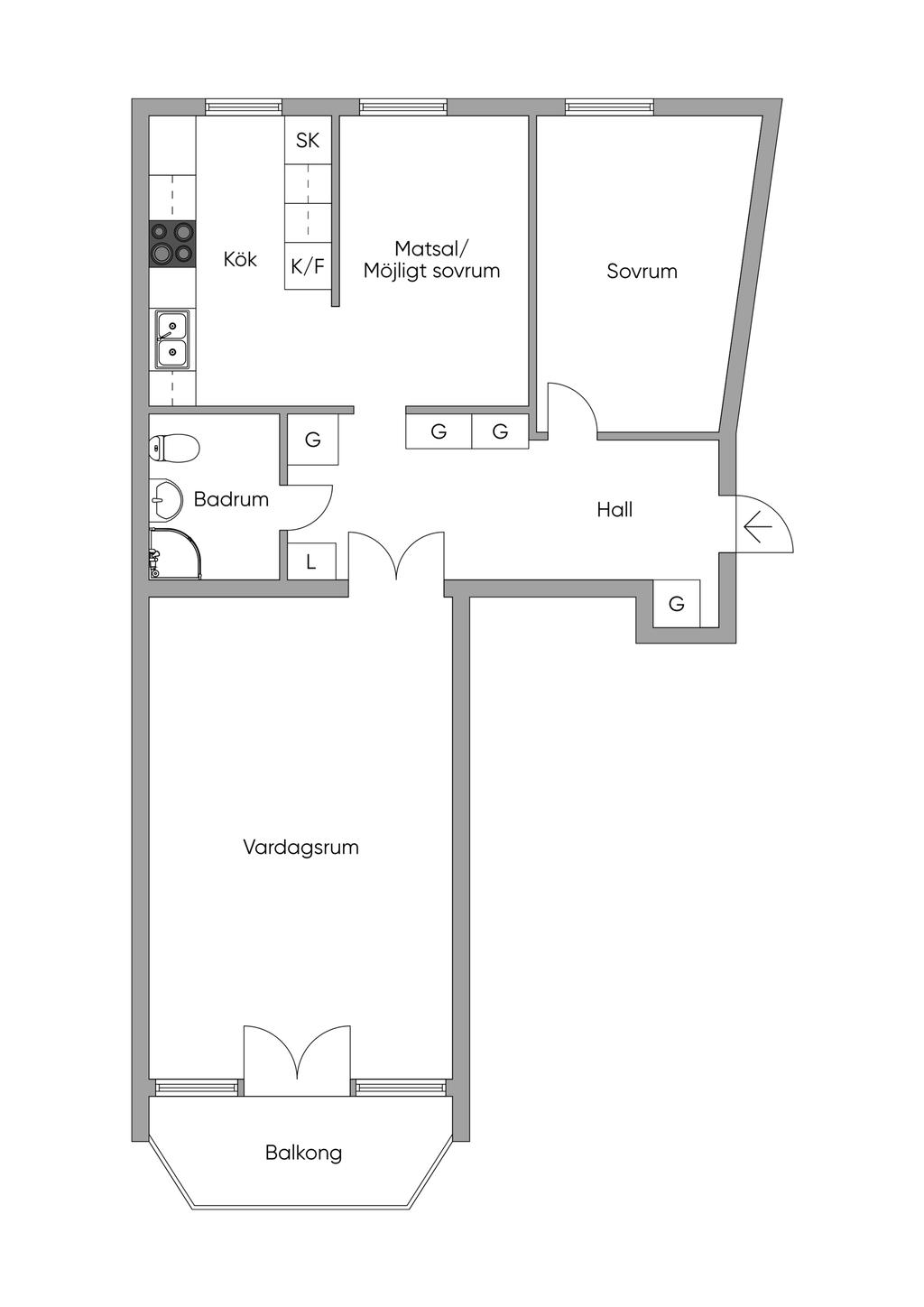
Planritning

Viss avvikelse kan förekomma. Skala och mått kan avvika från verkligheten.
Fullskärm