
Såld 16 jan 2025
Slutpris
250 000 kr
Tvårumslägenhet på Grangärdet!
Kontakta ansvarig mäklare
Erik Olsson
Lediga tider:
tis 21/10 och ons 22/10
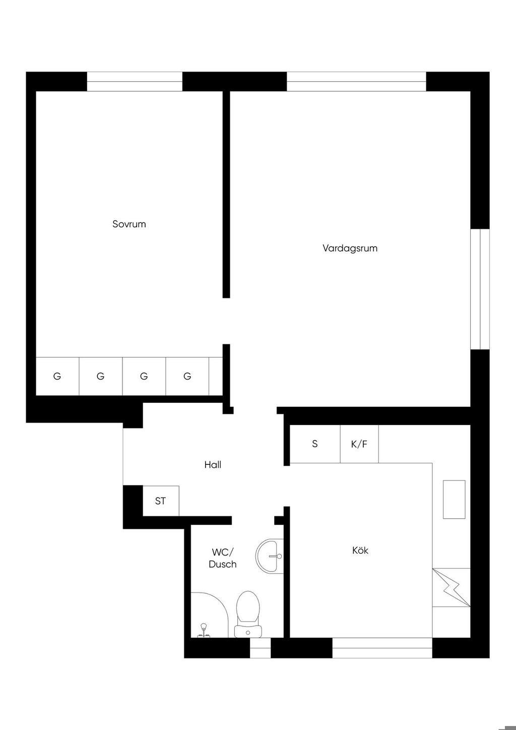
Planritning

Viss avvikelse kan förekomma. Skala och mått kan avvika från verkligheten.
Fullskärm