
Såld 14 jan 2025
Slutpris
1 490 000 kr
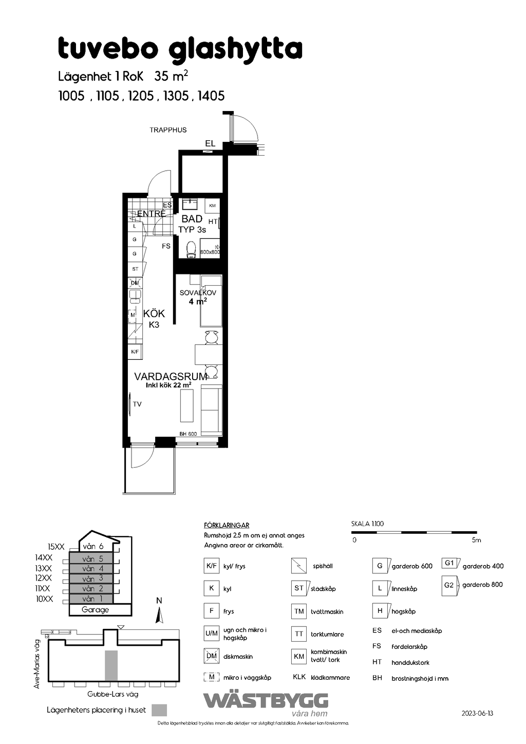
Sovalkov och balkong i söderläge!
Planritning

Viss avvikelse kan förekomma. Skala och mått kan avvika från verkligheten.
Fullskärm