
Såld 28 jul 2025
Slutpris
1 560 000 kr
FYND ! Marklägenhet med inglasad balkong i sydväst! Nära till det mesta!
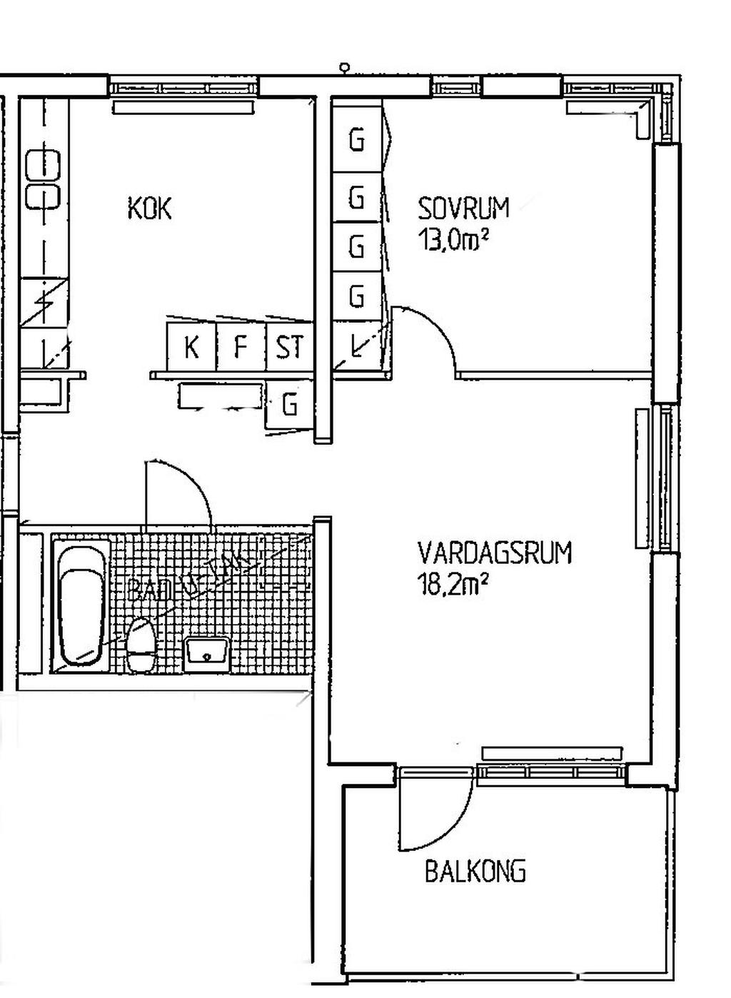
Planritning

Planskiss,
Viss avvikelse kan förekomma. Skala och mått kan avvika från verkligheten.