
Såld 05 jun 2025
Slutpris
1 550 000 kr
Välkommen till detta mysiga och naturnära radhus/fastighet på Tenorvägen 24!
Kontakta ansvarig mäklare
Niklas Lohman
Lediga tider:
fre 17/10 och mån 20/10
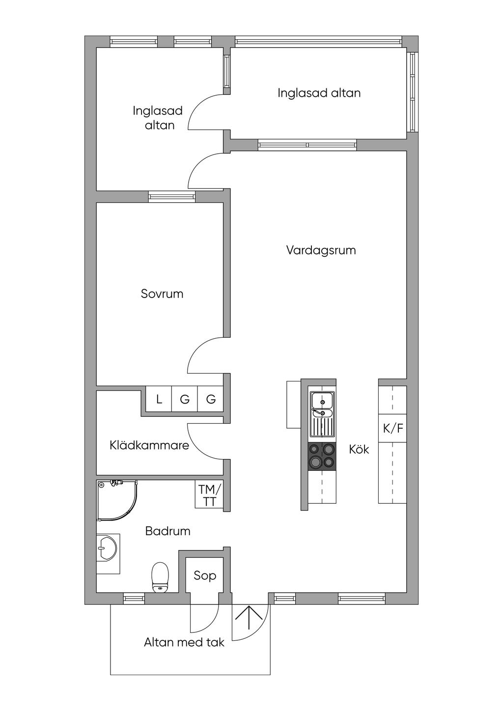
Planritning

Viss avvikelse kan förekomma. Skala och mått kan avvika från verkligheten.
FullskärmKarta och område
Tenorvägen 24, Skellefteå
Trygg affär - Varudeklarerad Villa
Marknadens mest omfattande paket för besiktning och försäkring ger trygghet i 10 år*.
*Enligt marknadsbevakning 2025-04-02
Läs mer här