
Såld 17 jan 2025
Slutpris
4 600 000 kr
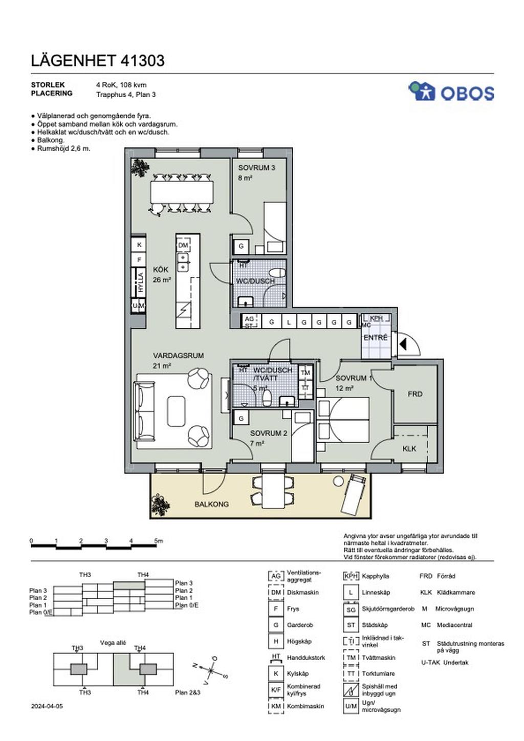
Helt ny 4a högst upp i huset med köksö och stor balkong med fint solläge
Lediga tider:
fre 17/10 och mån 20/10
Planritning

Viss avvikelse kan förekomma. Skala och mått kan avvika från verkligheten.
Fullskärm