
Såld 27 dec 2024
Slutpris
3 050 000 kr
Modernt och lättskött enplans-kejdehus med trevlig trädgård i solläge!
Lediga tider:
mån 27/10 och tis 28/10
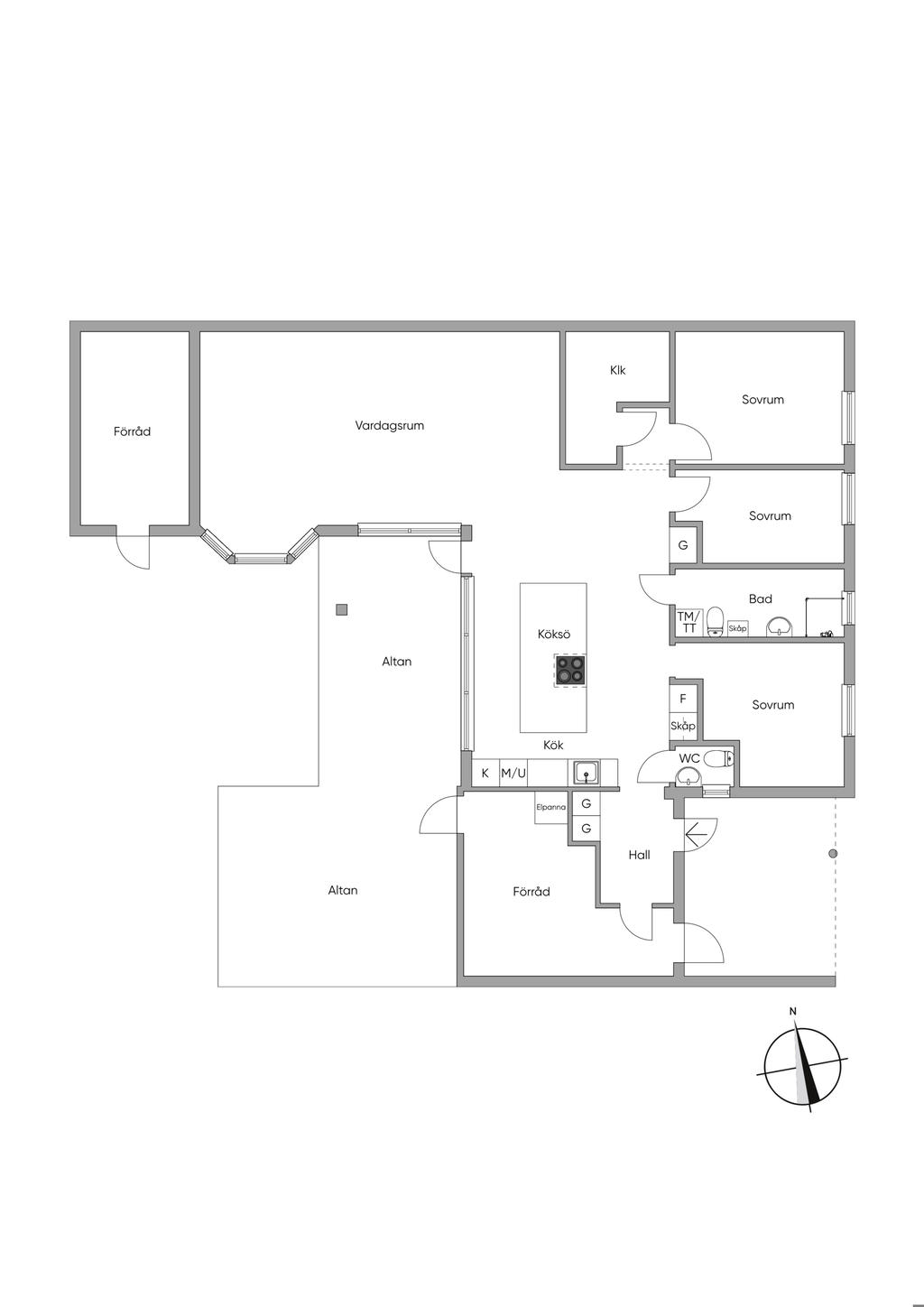
Planritning

Planlösning,
Viss avvikelse kan förekomma. Skala och mått kan avvika från verkligheten.
Karta och område
Fågelsångsvägen 17, Trollhättan
Trygg affär - Varudeklarerad Villa
Marknadens mest omfattande paket för besiktning och försäkring ger trygghet i 10 år*.
*Enligt marknadsbevakning 2025-04-02
Läs mer här