
Såld 23 okt 2024
Slutpris
7 950 000 kr
Tillbyggd enplansvilla med renoverat kök och renoverade badrum. Uteplats med spabad och kvällssol!
Lediga tider:
mån 20/10 och tis 21/10
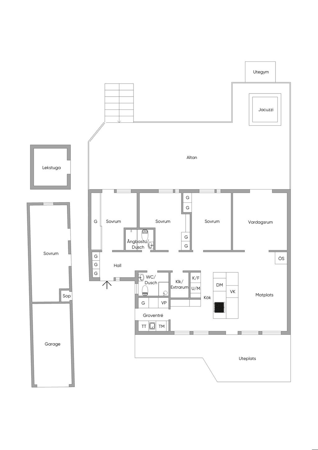
Planritning

Planlösning,
Viss avvikelse kan förekomma. Skala och mått kan avvika från verkligheten.
Karta och område
Champinjonvägen 9, Saltsjö-Boo
Trygg affär - Varudeklarerad Villa
Marknadens mest omfattande paket för besiktning och försäkring ger trygghet i 10 år*.
*Enligt marknadsbevakning 2025-04-02
Läs mer här