
Såld 24 okt 2024
Slutpris
3 600 000 kr
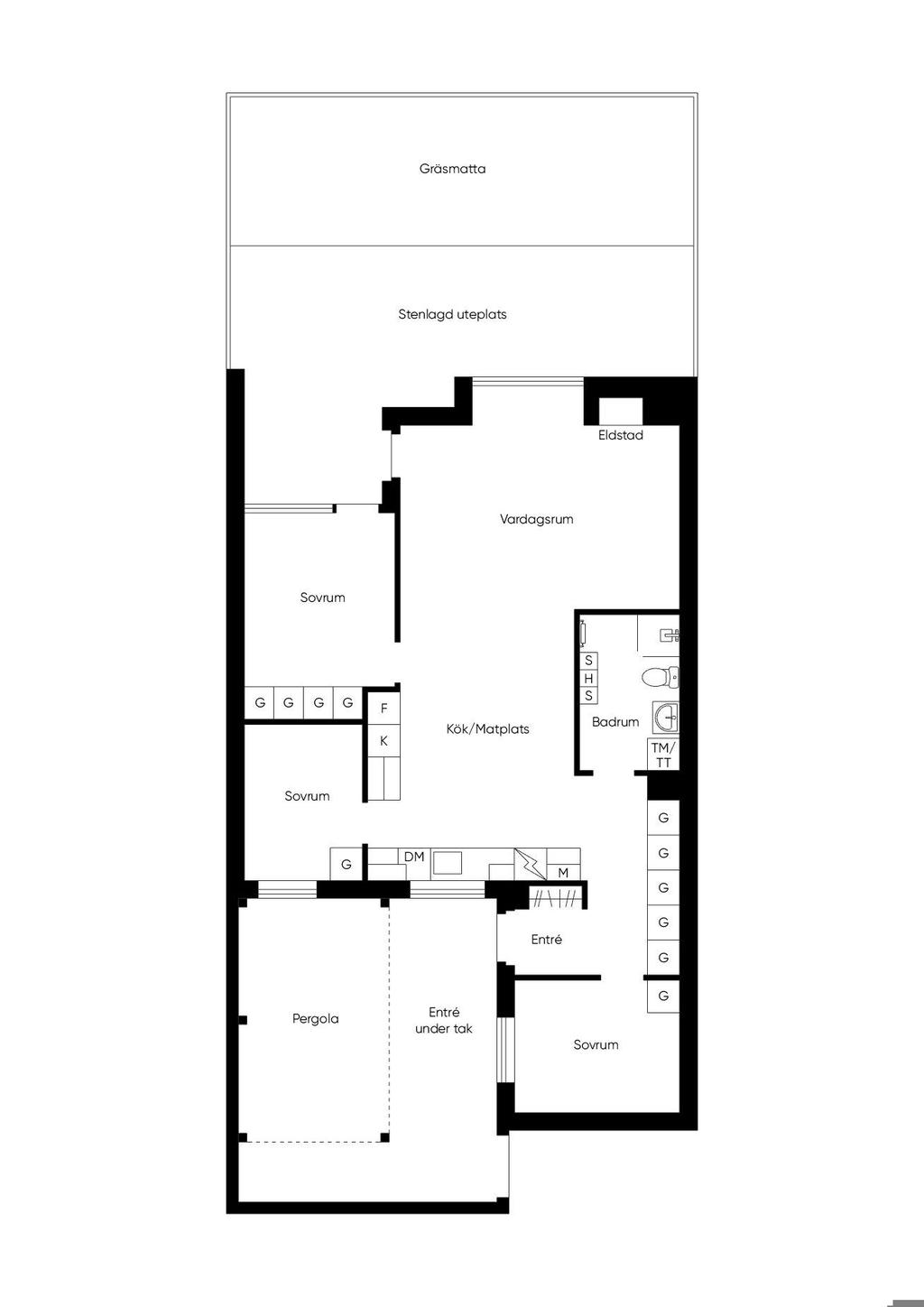
Markplansfyra med två stora uteplatser och braskamin
Planritning

Viss avvikelse kan förekomma. Skala och mått kan avvika från verkligheten.
Fullskärm