
Såld 25 jan 2025
Slutpris
2 425 000 kr
Nyproducerad 2a med högt läge & stor balkong
Lediga tider:
mån 20/10 och tis 21/10
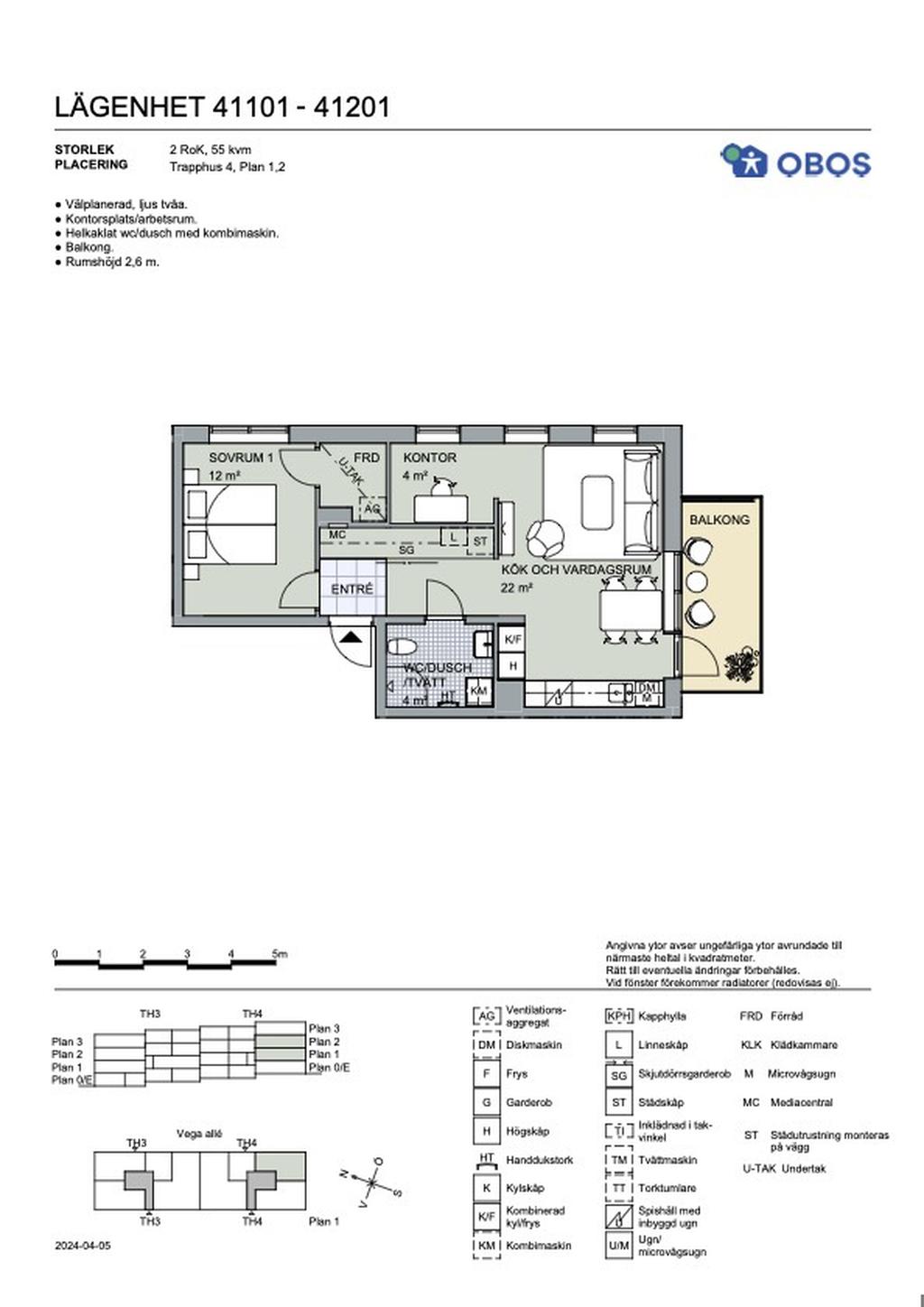
Planritning

Viss avvikelse kan förekomma. Skala och mått kan avvika från verkligheten.
Fullskärm