
Såld 27 nov 2024
Slutpris
8 850 000 kr
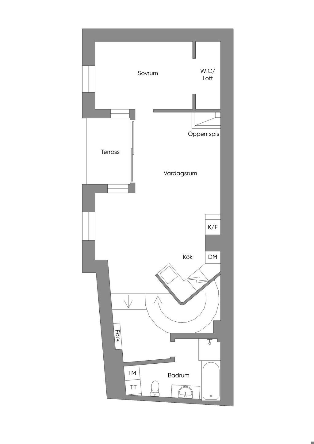
Unik vindsvåning med terrass och öppen spis i skuldfri förening!
Lediga tider:
fre 17/10 och mån 20/10
Planritning

Viss avvikelse kan förekomma. Skala och mått kan avvika från verkligheten.
Fullskärm