
Såld 01 nov 2024
Slutpris
600 000 kr
Ljus och ombonad etta med sovalkov - säljes med möbler
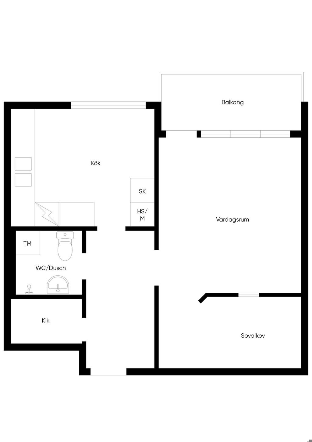
Planritning

Planlösning,
Viss avvikelse kan förekomma. Skala och mått kan avvika från verkligheten.