
Såld 25 aug 2025
Slutpris
1 010 000 kr
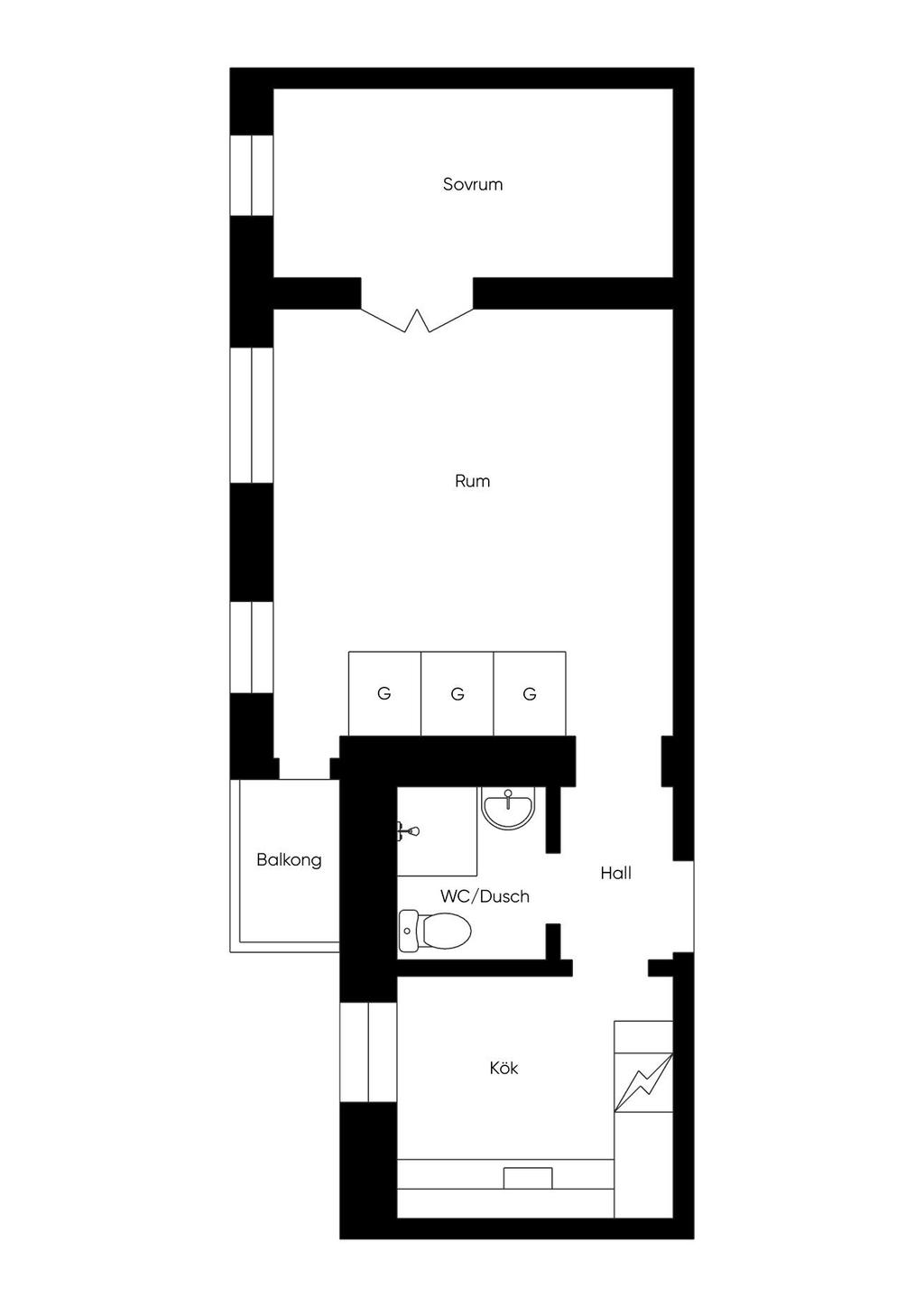
Perfekt centrumetta med balkong och avskärmad sovavdelning!
Kontakta ansvarig mäklare
Elisabet Jacobsen
Lediga tider:
tis 21/10 och ons 22/10
Planritning

Viss avvikelse kan förekomma. Skala och mått kan avvika från verkligheten.
Fullskärm