
Såld 15 feb 2025
Slutpris
4 350 000 kr
Enplanshus med inbyggt garage på grönskande Västergård!
Kontakta ansvarig mäklare
Jenny Nilsson
Lediga tider:
lör 18/10 och sön 19/10
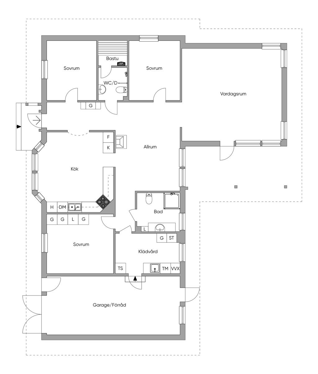
Planritning

Viss avvikelse kan förekomma. Skala och mått kan avvika från verkligheten.
FullskärmKarta och område
Onsdagsgatan 6, Helsingborg
Trygg affär - Varudeklarerad Villa
Marknadens mest omfattande paket för besiktning och försäkring ger trygghet i 10 år*.
*Enligt marknadsbevakning 2025-04-02
Läs mer här