
Såld 22 sep 2024
Slutpris
5 050 000 kr
Drömboende med panoramavy över Siljan – Enplanshus i natursköna Gärdebyn
Lediga tider:
tis 21/10 och tis 28/10
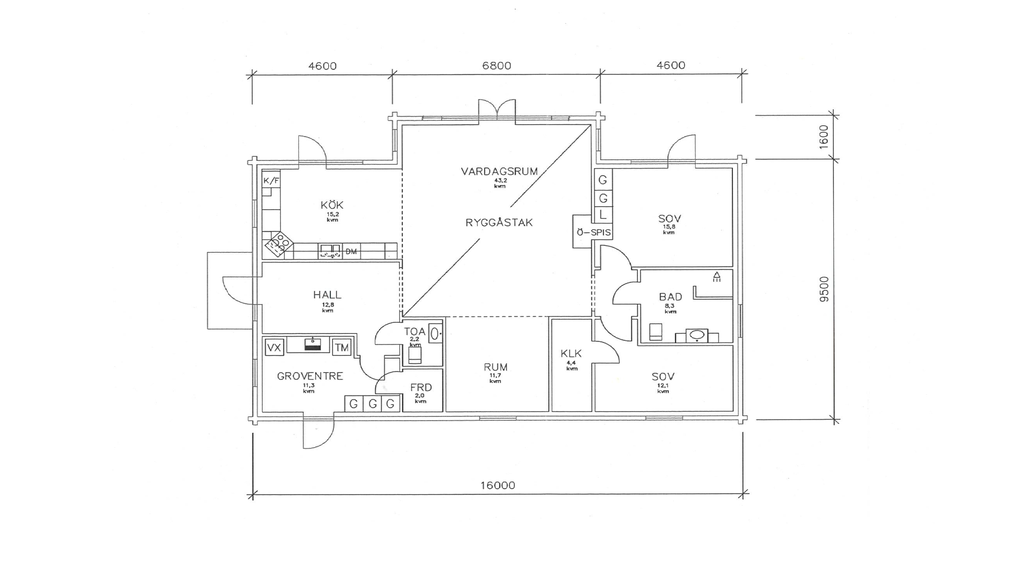
Planritning

Planritning,
Viss avvikelse kan förekomma. Skala och mått kan avvika från verkligheten.
Karta och område
Smigärdet 5, Rättvik
Trygg affär - Varudeklarerad Villa
Marknadens mest omfattande paket för besiktning och försäkring ger trygghet i 10 år*.
*Enligt marknadsbevakning 2025-04-02
Läs mer här