
Såld 04 nov 2024
Slutpris
900 000 kr
Trevlig tvåa med balkong och bra läge på Brynäs!
Kontakta ansvarig mäklare
Erika Lindgren
Lediga tider:
fre 17/10 och mån 20/10
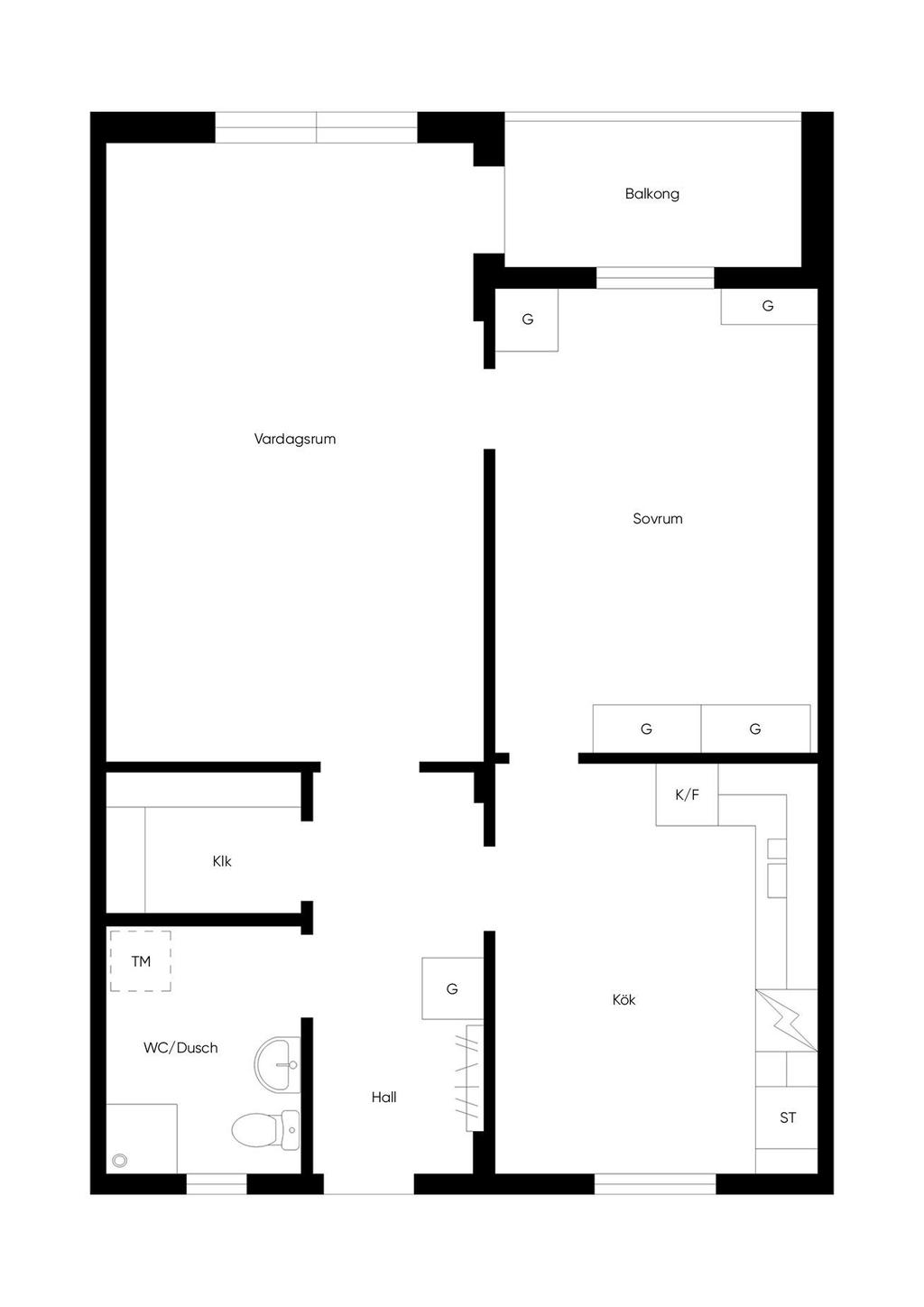
Planritning

Planlösning,
Viss avvikelse kan förekomma. Skala och mått kan avvika från verkligheten.