
Såld 07 feb 2025
Slutpris
4 200 000 kr
Trivsam enplansvilla med tre sovrum och soldränkt trädgård!
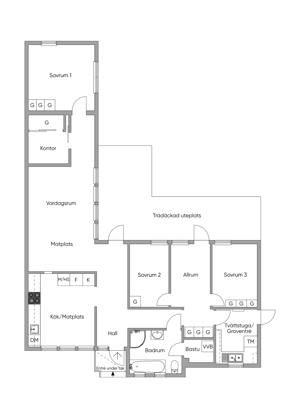
Planritning

Planritning,
Viss avvikelse kan förekomma. Skala och mått kan avvika från verkligheten.
Karta och område
Ekebyvägen 233, Vallentuna
Trygg affär - Varudeklarerad Villa
Marknadens mest omfattande paket för besiktning och försäkring ger trygghet i 10 år*.
*Enligt marknadsbevakning 2025-04-02
Läs mer här