
Såld 24 apr 2025
Slutpris
4 800 000 kr
Charmig 20-tals 2:a med söderbalkong i kvarteren runt Mariatorget!
Lediga tider:
mån 20/10 och tis 21/10
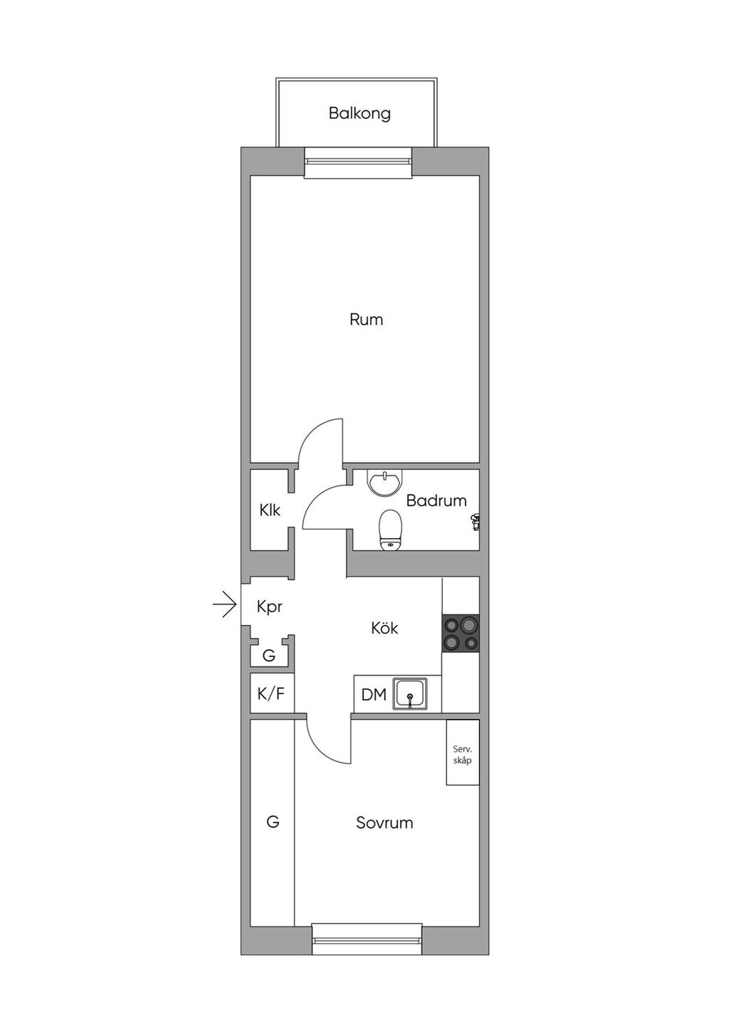
Planritning

Viss avvikelse kan förekomma. Skala och mått kan avvika från verkligheten.
Fullskärm