
Såld 29 aug 2025
Slutpris
3 170 000 kr
Sällsynt möjlighet att köpa en villa i bostadsrättsform!
Lediga tider:
mån 20/10 och tis 21/10
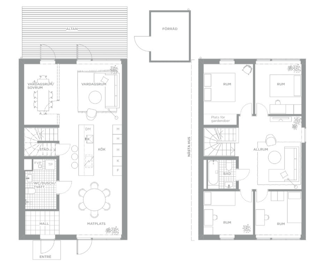
Planritning

Viss avvikelse kan förekomma. Skala och mått kan avvika från verkligheten.
Fullskärm