
Såld 09 maj 2025
Slutpris
5 750 000 kr
Lilla Laggaruddsvägen 30 - sjönära och med fin utsikt över sjön Väsman!
Kontakta ansvarig mäklare
Kristian Sundberg
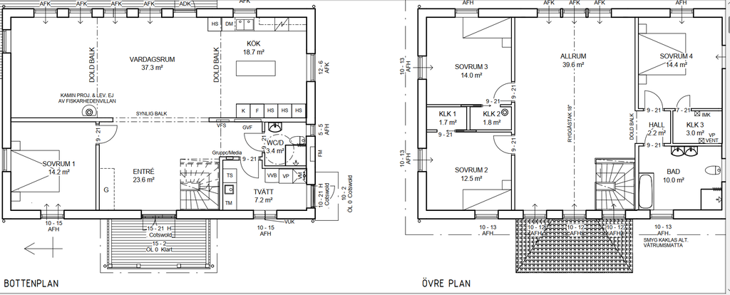
Planritning

Planritning,
Viss avvikelse kan förekomma. Skala och mått kan avvika från verkligheten.