Hoppa till innehåll
Såld 28 maj 2024
Slutpris
9 370 000 kr

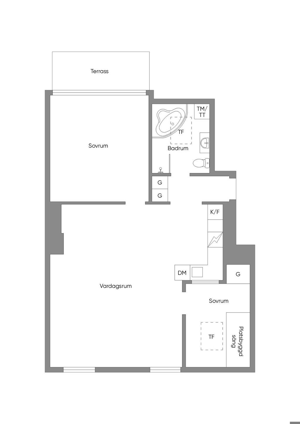
Upplandsgatan 11, VINDSVÅNING, Stockholm

Väldisponerad vindsvåning med terrass i sydvästläge!

  • Typ: Bostadsrättslägenhet
  • Rum: 3, varav 2 sovrum
  • Boarea: 59 m2
  • Biarea: 7 m2
  • Lägenhetsnummer: 11
  • Bruksarea: 66 m2
  • Byggnadsår: 1885
  • Månadsavgift: 3 119 kr
  • Upplåtelseform: Bostadsrätt
  • Våning: 5 av 5
  • Hiss: Ja

Planritning

Karta och område

Upplandsgatan 11, VINDSVÅNING, Stockholm

Kundernas omdömen

2025-10-14
Professionell, trevlig, hjälpsam, med social kompetens.
Aymé P
2025-10-14
Sakligt, ödmjukt och korrekt. Mycket kundorienterad, tillgängligt och effektiv.
Alejandro C
2025-09-24
Profesionell, lyhörd och tillitsfull. Sam höll oss informerade på ett tryggt sätt och var engagerad genom hela processen!
Feliks H
2025-09-21
Sam är så lätt att samarbeta med, tar fin hänsyn till det man själv är uppe i som säljare, är okomplicerad och lätt att få tag på när saker dyker upp. Otroligt proffsig, kan varmt rekommendera!
Cecilia W
2025-09-13
Kunnig, tydlig och bra kommunikation!
Fredrik H
2025-08-31
Fantastiskt slutpris. Det som imponerade mest var dock processen och hängivenheten som Sam hade.
Victor L
2025-08-29
Sam är en mycket engagerad mäklare. Under åren som vi letat efter lägenhet har vi vid visningar gång på gång stött på trötta och oengagerade mäklare, det var därför självklart för oss att anlita Sam för vår försäljning efter att v...
Linn L
2025-08-27
Min upplevse som köpare: Kommunikativ, flexibel, tydlig och effektiv.
Beatrice D
2025-08-25
Väldigt proffsig och trevlig :) Kan rekommendera!
Ano A
 
Steg 1/4 - Bostadsuppgifter
Steg 2/4 - Välj tid för mötet
Steg 3/4 - Kontaktuppgifter
Steg 4/4 - Slutför bokning
Steg 3/3 - Kontaktuppgifter

Boka tid med en mäklare för värdering

1. Fyll i dina bostadsuppgifter
2. Välj tid och mäklare i kalendern
3. Mäklaren ringer innan besöket

Boka tid med en mäklare som passar dig och din bostad

Så här går det till
1. Fyll i dina bostadsuppgifter
2. Välj tid och mäklare i kalendern
3. Mäklaren ringer innan besöket
Vi ringer dig för att boka en tid
Vi hittade inga lediga tider just nu. Fyll i dina kontaktuppgifter nedan så ringer vi upp för att boka in en passande tid.
Vi ringer dig för att en boka tid
Vi hittade inga lediga tider. Men det är inga problem, vi ringer upp för att hitta en passande tid.
Fyll i dina kontaktuppgifter
Vi behöver dem för att kunna kontakta dig inför mötet.
Fyll i dina kontaktuppgifter
Vänligen fyll i dina uppgifter nedan så ringer vi upp dig för att boka en tid.
Mäklare:
Tid:

Hur kontaktar vi dig?

Oj, något gick fel. Försök gärna igen. 

En muntlig värdering är oftast gratis, men om du bor långt bort från vårt kontor kan en mindre avgift tillkomma. I så fall stämmer mäklaren av det med dig innan.

Vi tar en avgift för en skriftlig värdering för exempelvis bolån. Prata med din mäklare för att få ytterligare information om detta.

Du förbinder dig inte till någonting när du bokar en tid.

Hämtar tider...
Ett ögonblick!
Tack, dina uppgifter är sparade!
Ditt möte är bokat!
Mäklare:
Datum:
Tid:
kl.
Adress:
Lägg till gärna till epost för att inte missa något.

Liknande objekt till salu