
Såld 09 jun 2024
Slutpris
895 000 kr
4 r.o.k centralt i Hedemora med utsikt från balkongen över Sveaparken!
Lediga tider:
ons 22/10 och tor 23/10
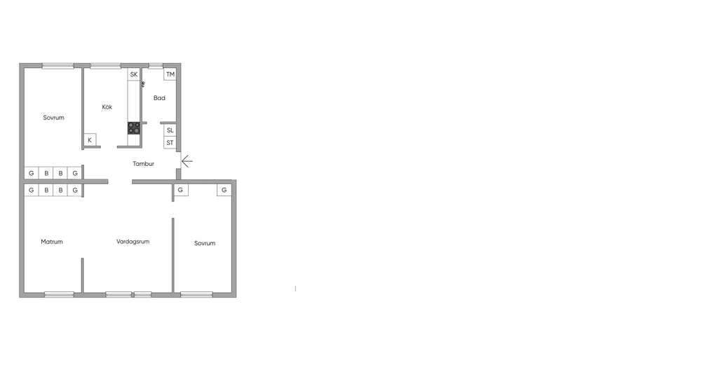
Planritning

Planlösning,
Viss avvikelse kan förekomma. Skala och mått kan avvika från verkligheten.