
Såld 24 maj 2024
Slutpris
5 300 000 kr
Fräscht 1-plansradhus med soligt västerläge i mysiga Björnekulla
Lediga tider:
mån 20/10 och tis 21/10
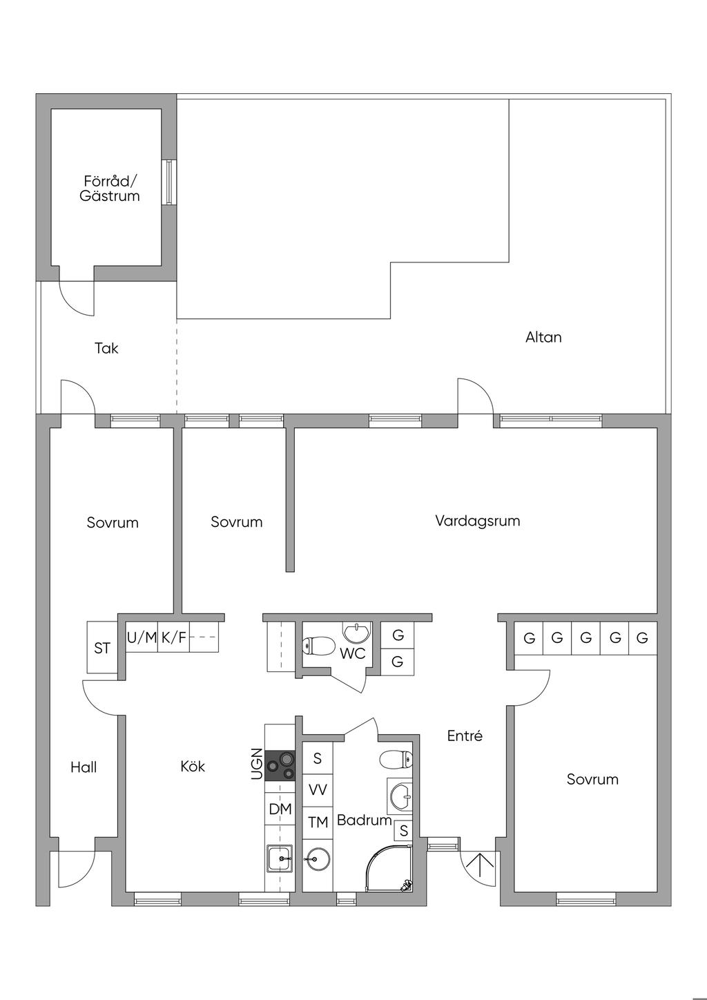
Planritning

Planlösning,
Viss avvikelse kan förekomma. Skala och mått kan avvika från verkligheten.
Karta och område
Västes gata 47, Västra Frölunda
Trygg affär - Varudeklarerad Villa
Marknadens mest omfattande paket för besiktning och försäkring ger trygghet i 10 år*.
*Enligt marknadsbevakning 2025-04-02
Läs mer här