
Såld 02 apr 2024
Slutpris
3 100 000 kr
Välskött hus i populära Hummelsviken på Rådmansö
Lediga tider:
tor 23/10 och mån 27/10
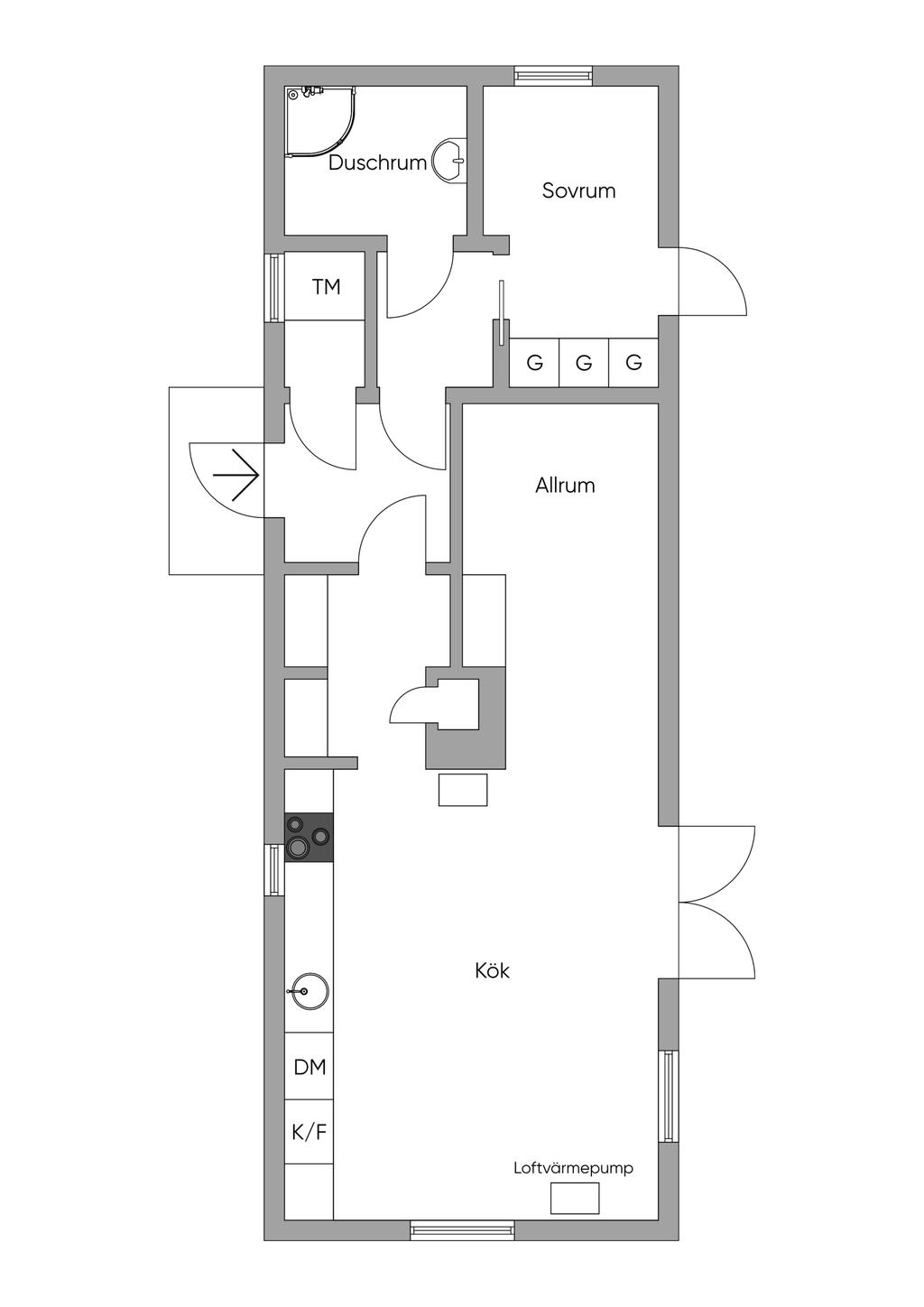
Planritning

Planlösning,
Viss avvikelse kan förekomma. Skala och mått kan avvika från verkligheten.
Karta och område
Hummelsviksvägen 46, Gräddö
Trygg affär - Varudeklarerad Villa
Marknadens mest omfattande paket för besiktning och försäkring ger trygghet i 10 år*.
*Enligt marknadsbevakning 2025-04-02
Läs mer här