
Såld 08 apr 2024
Slutpris
675 000 kr
Centralt belägen bostadsrätt i markplan om 3 ROK!
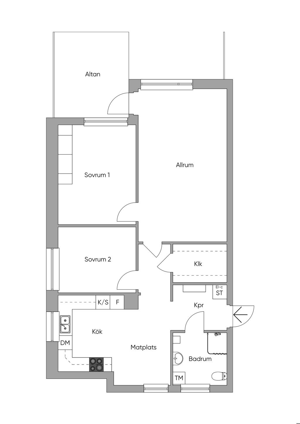
Planritning

Planritning,
Viss avvikelse kan förekomma. Skala och mått kan avvika från verkligheten.