
Såld 16 mar 2024
Slutpris
8 150 000 kr
Modernt och välskött enplanshus på bästa läge!
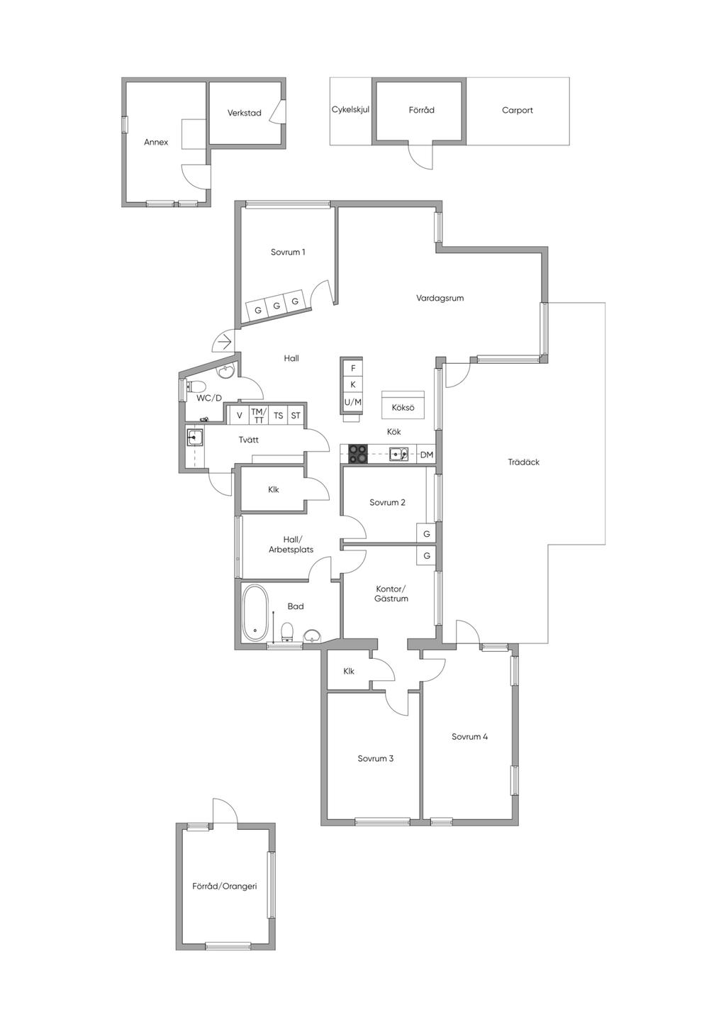
Planritning

Viss avvikelse kan förekomma. Skala och mått kan avvika från verkligheten.
FullskärmKarta och område
Annehemsvägen 97, Lund
Trygg affär - Varudeklarerad Villa
Marknadens mest omfattande paket för besiktning och försäkring ger trygghet i 10 år*.
*Enligt marknadsbevakning 2025-04-02
Läs mer här