
Såld 29 jun 2024
Slutpris
5 395 000 kr
NYTT PRIS! ROMME - gård med jakträtt och stall med fem boxar!
Lediga tider:
tis 21/10 och ons 22/10
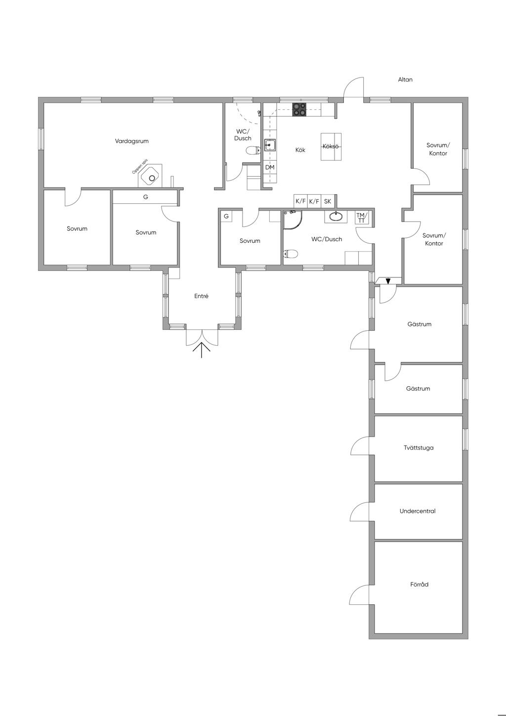
Planritning

Viss avvikelse kan förekomma. Skala och mått kan avvika från verkligheten.
Fullskärm
Alternativ planlösning om man öppnar upp till allrum och sovrum i längan. Öppnar man även (eller istället) upp till befintlig tvättstuga kommer man åt vatten och avlopp för att bygga kök och badrum och skapar därmed en fullt utrustad lägenhet.,
Viss avvikelse kan förekomma. Skala och mått kan avvika från verkligheten.
Karta och område
Rommevägen 96, Borlänge
Trygg affär - Varudeklarerad Villa
Marknadens mest omfattande paket för besiktning och försäkring ger trygghet i 10 år*.
*Enligt marknadsbevakning 2025-04-02
Läs mer här