
Såld 04 dec 2023
Slutpris
3 700 000 kr
Nyproducerad tvåa belägen på en hörna i obelånad BRF
Lediga tider:
mån 20/10 och tis 21/10
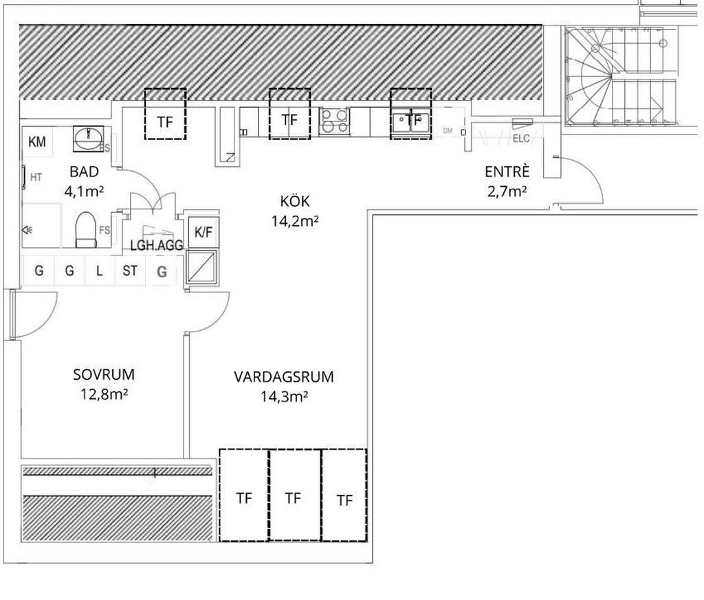
Planritning

Viss avvikelse kan förekomma. Skala och mått kan avvika från verkligheten.
Fullskärm