
Såld 09 mar 2024
Slutpris
4 200 000 kr
Unik fastighet i Strövelstorp med enorm potential
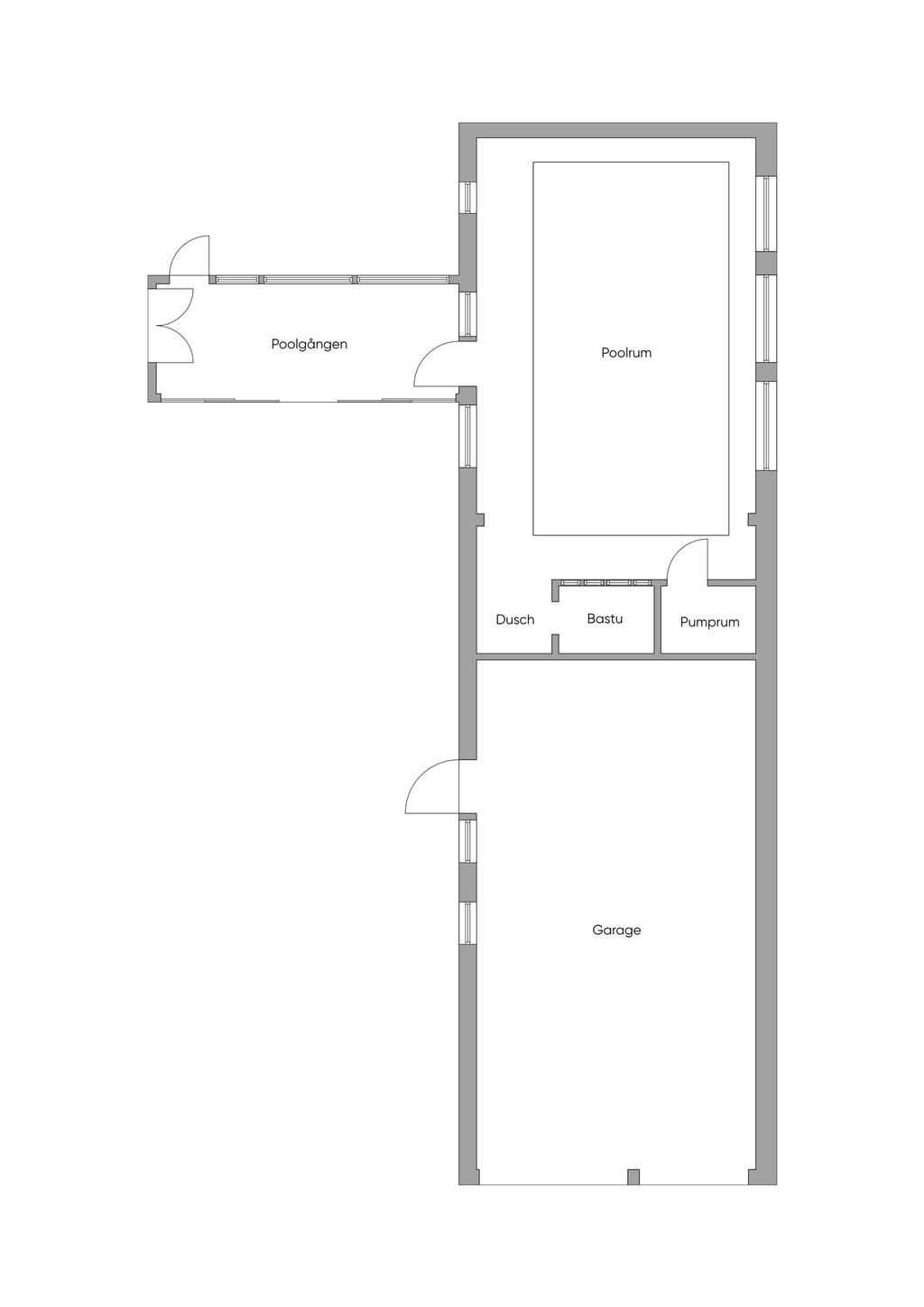
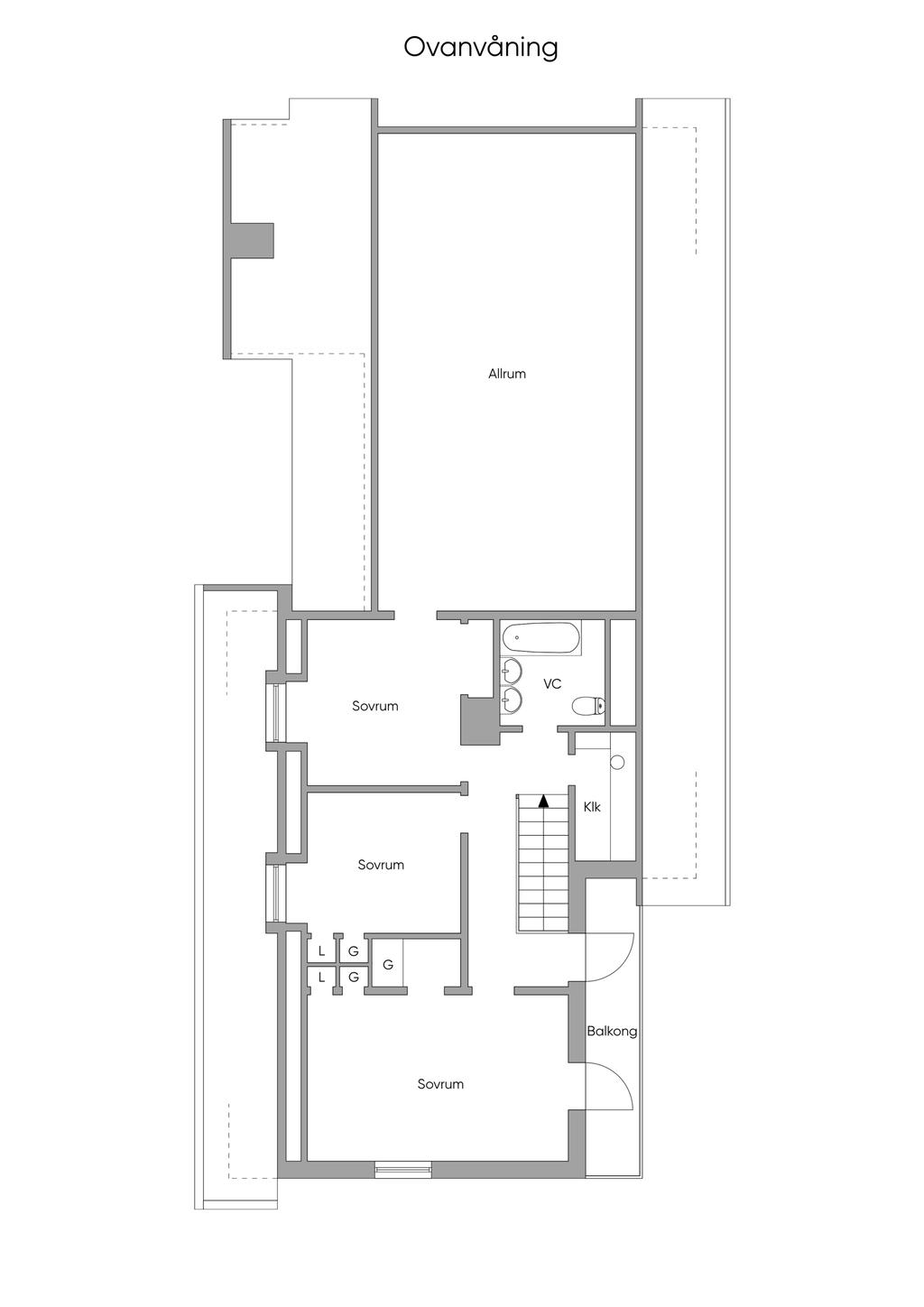
Planritning

Viss avvikelse kan förekomma. Skala och mått kan avvika från verkligheten.
Fullskärm
Viss avvikelse kan förekomma. Skala och mått kan avvika från verkligheten.
Fullskärm
Viss avvikelse kan förekomma. Skala och mått kan avvika från verkligheten.
Fullskärm
Viss avvikelse kan förekomma. Skala och mått kan avvika från verkligheten.
Fullskärm