
Såld 27 feb 2025
Slutpris
2 070 000 kr
Tvåa i toppskick med uteplats och förening med gym, bastu och relaxavdelning!
Lediga tider:
mån 20/10 och ons 22/10
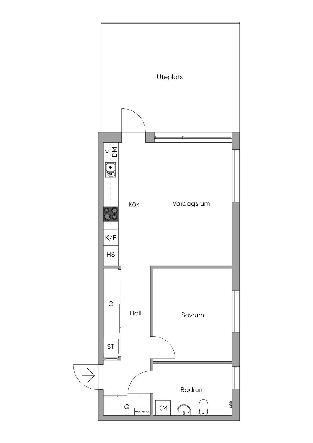
Planritning

Viss avvikelse kan förekomma. Skala och mått kan avvika från verkligheten.
Fullskärm