Såld 22 sep 2023
Slutpris
2 325 000 kr
Trea med gavelläge och genuin villakänsla belägen markplan med uterum och trädgårdstäppa!
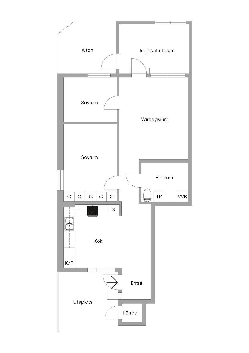
Planritning

Planlösning,
Viss avvikelse kan förekomma. Skala och mått kan avvika från verkligheten.