
Såld 11 aug 2024
Kontakta ansvarig bobutik
Södertälje/Nykvarn
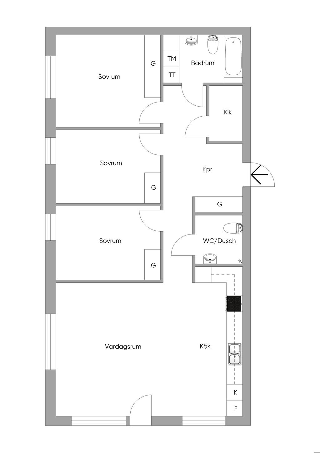
Planritning

Viss avvikelse kan förekomma. Skala och mått kan avvika från verkligheten.
Fullskärm