Såld 12 sep 2023
Slutpris
3 385 000 kr
Tillbyggd 1-plansvilla i lantlig idyll
Lediga tider:
mån 20/10 och tis 21/10
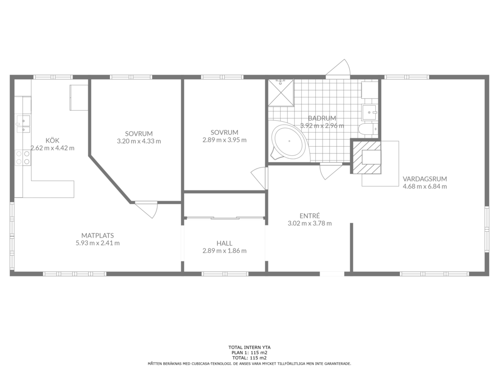
Planritning

Planritning,
Viss avvikelse kan förekomma. Skala och mått kan avvika från verkligheten.