Välplanerat radhus med utmärkt barnvänligt läge!
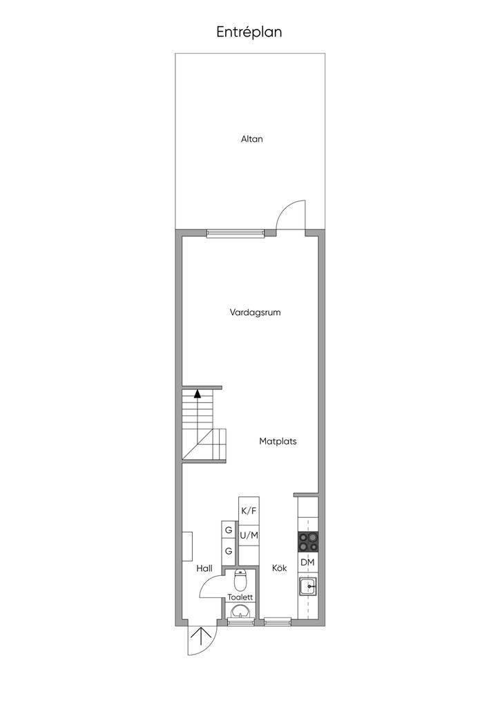
Planritning

Entréplan (viss avvikelse kan förekomma),
Viss avvikelse kan förekomma. Skala och mått kan avvika från verkligheten.

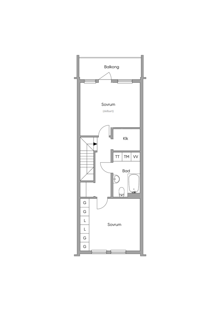
Nuvarande planlösning övre plan,
Viss avvikelse kan förekomma. Skala och mått kan avvika från verkligheten.

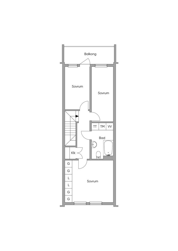
Valfri planlösning övervåning 2-3 sovrum eller 2 sovrum och separat klädkammare.,
Viss avvikelse kan förekomma. Skala och mått kan avvika från verkligheten.