
Såld 07 apr 2024
Slutpris
6 250 000 kr
Modern och snygg 3 rok med enorm uteplats intill Stockholms Skärgård mitt i pulsen Nacka Strand
Lediga tider:
fre 17/10 och tis 21/10
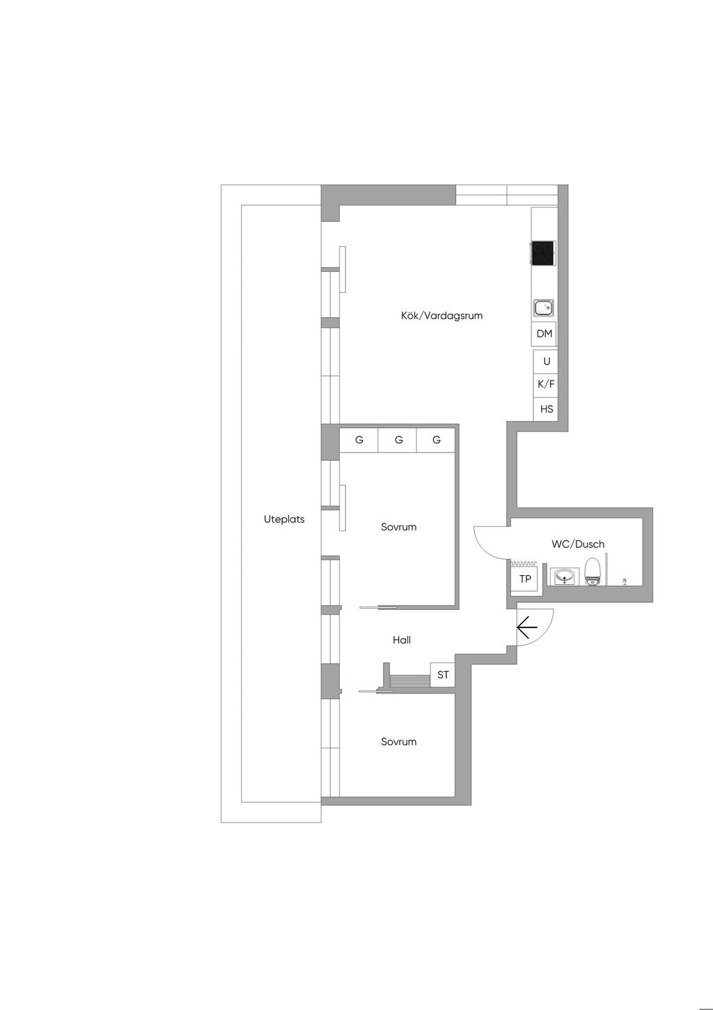
Planritning

Viss avvikelse kan förekomma. Skala och mått kan avvika från verkligheten.
Fullskärm