
Parhus i grönskande idyll!
Planritning

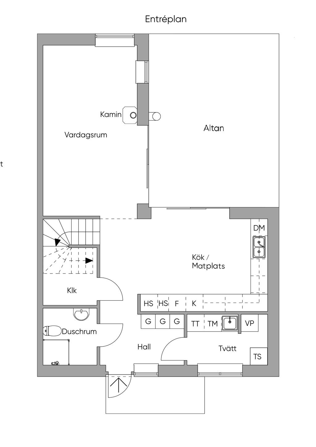
Planritning Entréplan,
Viss avvikelse kan förekomma. Skala och mått kan avvika från verkligheten.

Planritning Övre plan,
Viss avvikelse kan förekomma. Skala och mått kan avvika från verkligheten.

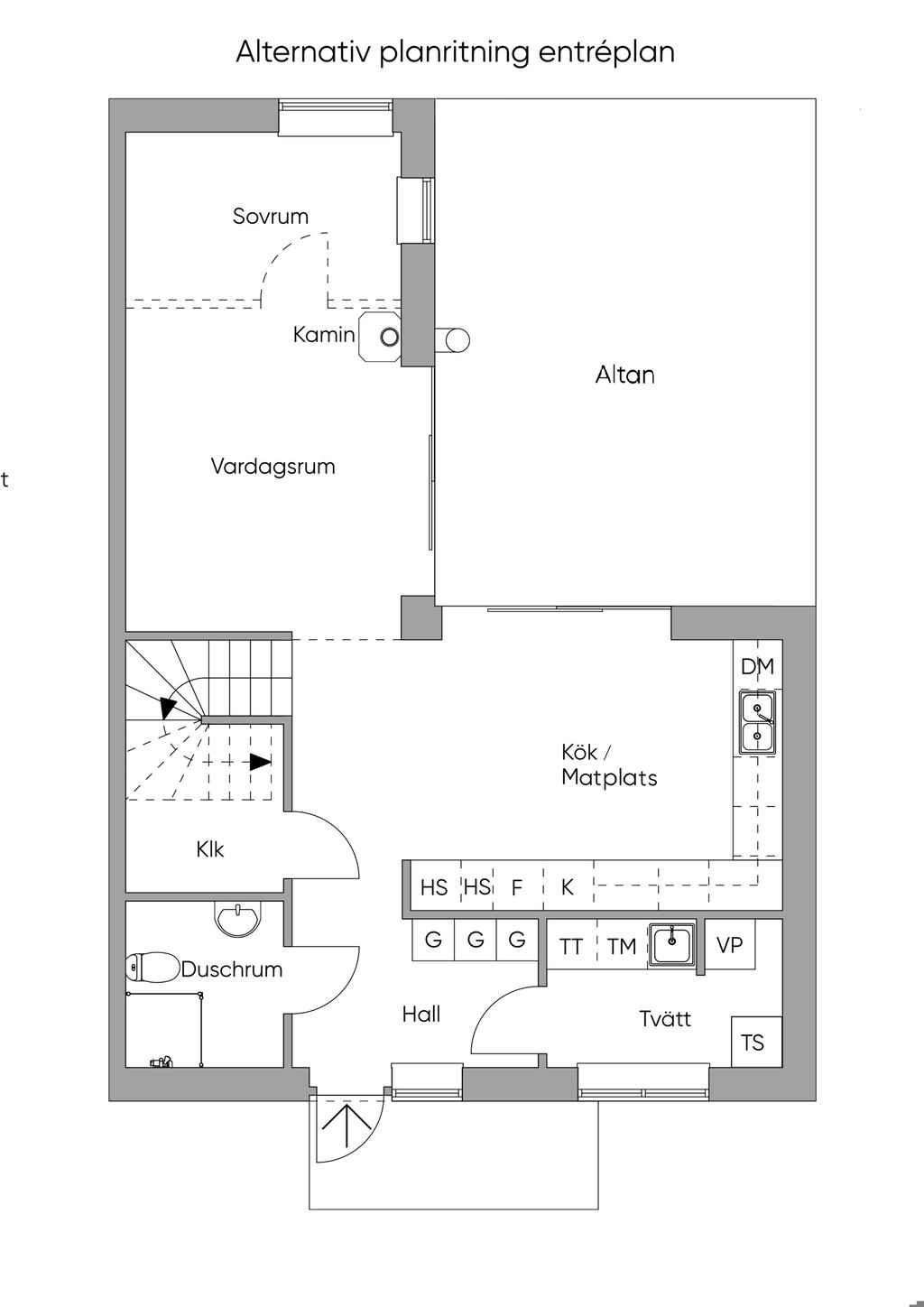
Alternativ Planritning Entréplan,
Viss avvikelse kan förekomma. Skala och mått kan avvika från verkligheten.

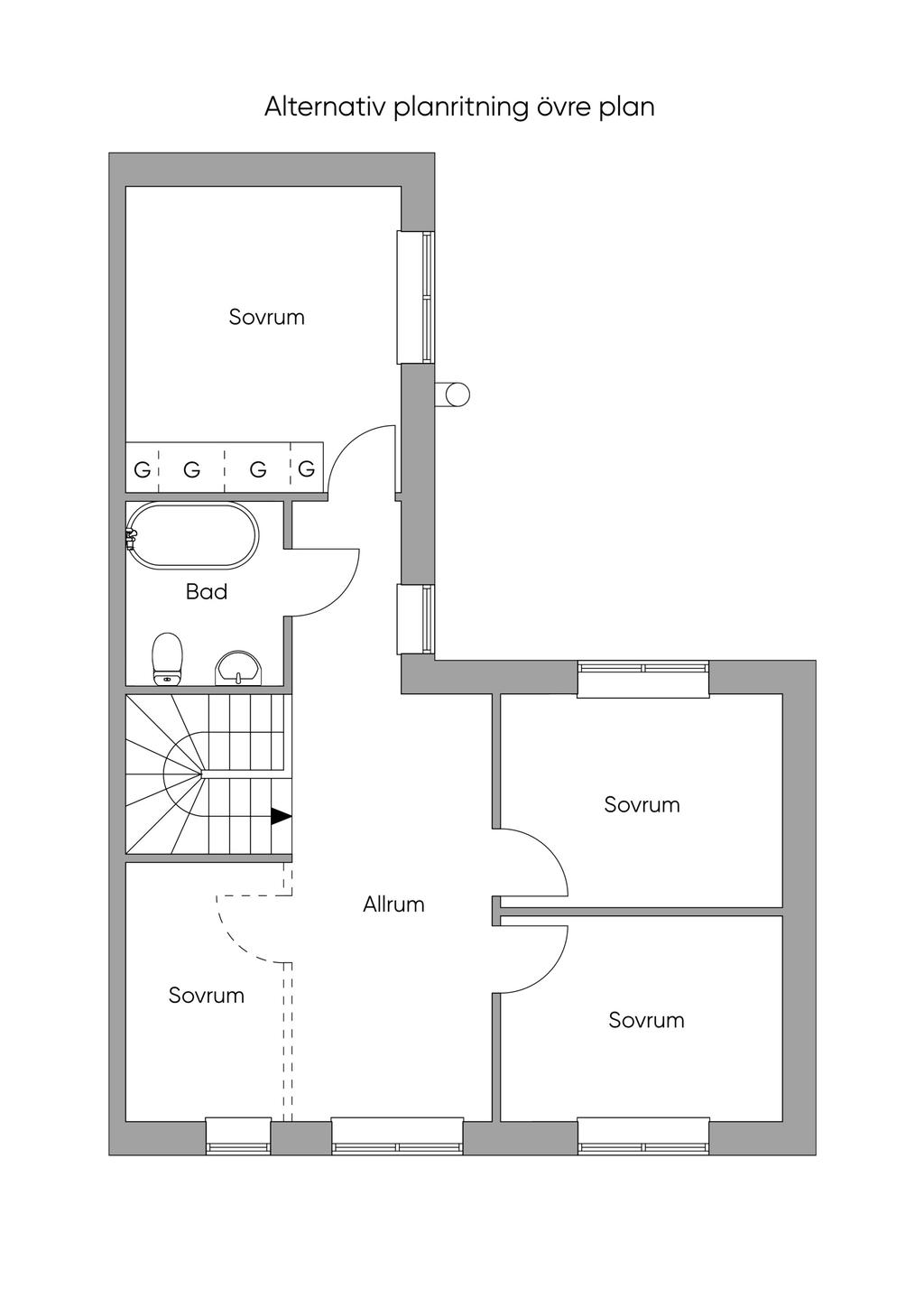
Alternativ Planritning Övre plan,
Viss avvikelse kan förekomma. Skala och mått kan avvika från verkligheten.