Såld 29 sep 2023
Slutpris
1 450 000 kr
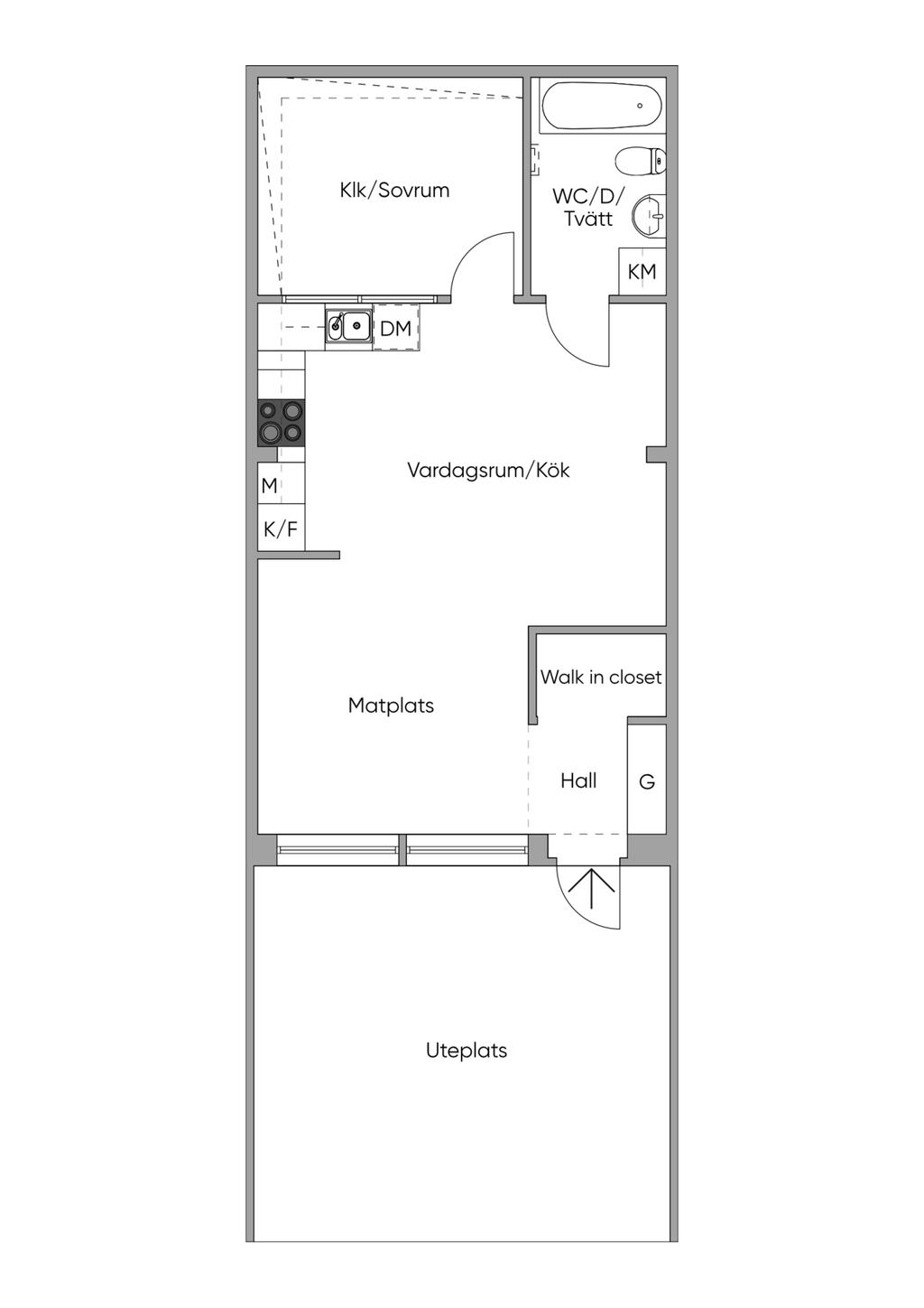
Rymlig etta med uteplats på otroliga 28,8 kvm
Planritning

Viss avvikelse kan förekomma. Skala och mått kan avvika från verkligheten.
Fullskärm